Maison neuve à
Saint-Ouen-l'Aumône
(95310) Référence :
CT2414378_1
Prix du projet : Maison avec Terrain
prix 536 040 €
- 7 pièces
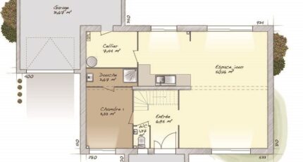
- 4 chambres
- Surface maison 160 m2
VENTE : maison de 7 pièces (160 m²) à Saint-Ouen-l'Aumône
MAISON 7 PIÈCES NEUVE - VUE PANORAMIQUE
En vente : à deux pas de la station Saint-Ouen-l'Aumône Liesse (Paris à 35 min par le RER C), nous sommes ravis de vous présenter cette maison de 7 pièces de 160 m² et de 600 m² de terrain avec vue panoramique à Saint-Ouen-l'Aumône (95310). Son intérieur inclut quatre chambres, une cuisine et deux salles de bains.
C'est une maison de 2 niveaux. Elle est neuve.
Il y a l'École Primaire les Bourseaux, l'École Maternelle la Prairie et l'École Élémentaire la Prairie à moins de 10 minutes à pied. Niveau transports en commun, on trouve le RER C et A ainsi que 36 gares à moins de 10 minutes en voiture. Il y a une bibliothèque, un bassin de natation, trois boulangeries, des commerces et deux épiceries dans les environs.
Son prix de vente est de 536 040 €.
Prenez contact avec Christophe TALAMONI (tél : 06-49-55-08-27) pour plus de renseignements sur la maison.
Annonce proposée par un Agent Commercial Partenaire.
Mentions légales
Terrain proposé par un partenaire foncier selon disponibilités et autorisation de publicité au prix de 233 000 €. Hors droit d'enregistrement et frais de notaire. Terrain + Maison proposés au prix de 536 040 € (Hors branchements et raccordements, papiers peints, peintures, revêtement de sol dans les chambres. Tarif modifiable sans préavis). Etiquette énergie : A. Différents modèles disponibles pour ce terrain. Assurances et garanties du constructeur (RC professionnelle, décennale, dommage ouvrage, garantie de remboursement de l'acompte, livraison à prix et délai convenu) : https://www.maisons-balency.fr/informations-legales/. HEXAOM Services est enregistré auprès de l'ORIAS en tant que Courtier en financement, Niveau 1, sous le numéro 14001345.Agence Maisons Balency de Baillet-en-France (95560)
- Téléphone :
- 01 34 46 05 23
- Adressse :
- 81 rue de Paris
95560 Baillet-en-France, France
