Maison neuve à
Saint-Ouen-l'Aumône
(95310) Référence :
CT2414378_2
Prix du projet : Maison avec Terrain
prix 566 080 €
- 9 pièces
- 4 chambres
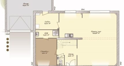
- Surface maison 186 m2
VENTE d'une maison de 9 pièces (186 m²) à Saint-Ouen-l'Aumône
MAISON 9 PIÈCES NEUVE
En vente : à deux pas de la station Saint-Ouen-l'Aumône Liesse du RER C (35 min de Paris), notre agence Maisons Balency Baillet-en-France est ravie de vous présenter cette maison de 9 pièces de 186 m² et de 600 m² de terrain à Saint-Ouen-l'Aumône (95310).
Cette maison possède 2 niveaux. Elle dispose de quatre chambres, d'une cuisine et de deux salles de bains. Cette maison est neuve.
Il y a l'École Primaire les Bourseaux, l'École Maternelle la Prairie et l'École Élémentaire la Prairie à moins de 10 minutes à pied. Côté transports, on trouve les lignes C et A du RER ainsi que 36 gares à moins de 10 minutes en voiture. Il y a une bibliothèque, un bassin de natation, trois boulangeries, des commerces et deux épiceries dans les environs.
Son prix de vente est de 566 080 €.
Contactez Christophe TALAMONI (06-49-55-08-27) pour tout renseignement sur la maison, sur les démarches à suivre ou sur les modalités de vente.
Annonce proposée par un Agent Commercial Partenaire.
Mentions légales
Terrain proposé par un partenaire foncier selon disponibilités et autorisation de publicité au prix de 233 000 €. Hors droit d'enregistrement et frais de notaire. Terrain + Maison proposés au prix de 566 080 € (Hors branchements et raccordements, papiers peints, peintures, revêtement de sol dans les chambres. Tarif modifiable sans préavis). Etiquette énergie : A. Différents modèles disponibles pour ce terrain. Assurances et garanties du constructeur (RC professionnelle, décennale, dommage ouvrage, garantie de remboursement de l'acompte, livraison à prix et délai convenu) : https://www.maisons-balency.fr/informations-legales/. HEXAOM Services est enregistré auprès de l'ORIAS en tant que Courtier en financement, Niveau 1, sous le numéro 14001345.Agence Maisons Balency de Baillet-en-France (95560)
- Téléphone :
- 01 34 46 05 23
- Adressse :
- 81 rue de Paris
95560 Baillet-en-France, France
