Maison neuve à
Saint-Pierre-de-Bailleul (27920) Référence : RC2303866_1

Prix du projet : Maison avec Terrain

prix 359 855 €

  • 5 pièces
  • 3 chambres
  • Surface maison 120 m2

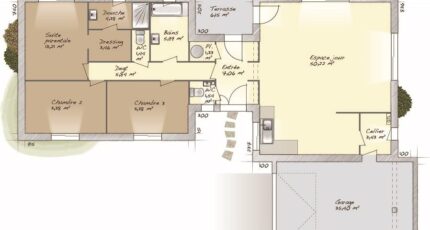
Saint-Pierre-de-Bailleul : maison F5 (120 m²) à construire.
IDÉALEMENT SITUÉE - MAISON 5 PIÈCES NEUVE
À proximité de la gare de Vernon-Giverny (Paris à 1 h par le Transilien J), nous vous présentons cette maison de 5 pièces de plain-pied de 120 m² et de 1 000 m² de terrain en vente, idéalement située dans Saint-Pierre-de-Bailleul (27920).
Conçue de plain-pied, elle compte trois chambres, une cuisine et deux salles de bains. La maison est neuve.
Cette maison se situe dans un secteur recherché. L'École Primaire la Grâce est implantée à moins de 10 minutes à pied. Côté transports, il y a deux gares (Vernon-Giverny et Gaillon-Aubevoye) à moins de 10 minutes en voiture. On trouve un accès à l'autoroute A13 à 6 km et Évreux est située à 21 km.
Elle est proposée à l'achat pour 359 855 €.
Contactez notre agence (RENIER Célia : 07-62-90-87-77) pour plus de renseignements sur la maison ou sur les démarches à suivre. Faites de vos projets immobiliers une réalité avec Maisons Balency Boos.

Annonce proposée par un Agent Commercial Partenaire.

Mentions légales

Terrain proposé par un partenaire foncier selon disponibilités et autorisation de publicité au prix de 88 000 €. Hors droit d'enregistrement et frais de notaire. Terrain + Maison proposés au prix de 271 855 € (Hors branchements et raccordements, papiers peints, peintures, revêtement de sol dans les chambres. Tarif modifiable sans préavis). Etiquette énergie : A. Différents modèles disponibles pour ce terrain. Assurances et garanties du constructeur (RC professionnelle, décennale, dommage ouvrage, garantie de remboursement de l'acompte, livraison à prix et délai convenu) : https://www.maisons-balency.fr/informations-legales/. HEXAOM Services est enregistré auprès de l'ORIAS en tant que Courtier en financement, Niveau 1, sous le numéro 14001345.

Contactez l'agence de Boos

02 35 80 66 66

    * Champs obligatoires

    Vos informations sont traitées par HEXAOM et transmises à un conseiller commercial qui vous contactera afin de répondre à votre demande. Les plans et images présentés sur notre site sont la propriété d’HEXAOM et ne peuvent pas être reproduits sans son accord. Pour retrouver notre politique de protection des données personnelles et exercer vos droits conformément à la « loi informatique et liberté » cliquez-ici.