Maison neuve à
Saint-Pierre-de-Bailleul (27920) Référence : RC2303866_2

Prix du projet : Maison avec Terrain

prix 410 679 €

  • 7 pièces
  • 4 chambres
  • Surface maison 160 m2

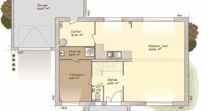
Maison T7 (160 m²) à construire à Saint-Pierre-de-Bailleul
IDÉALEMENT SITUÉE - MAISON 7 PIÈCES NEUVE
Proche de la gare de Vernon-Giverny (Paris à 1 h avec le Transilien J), découvrez cette maison de 7 pièces de 160 m² et de 1 000 m² de terrain idéalement située dans Saint-Pierre-de-Bailleul (27920).
C'est une maison de 2 niveaux. Elle dispose de quatre chambres, d'une cuisine et de deux salles de bains. La maison est neuve.
Cette maison se situe dans un quartier convoité. L'École Primaire la Grâce se trouve à moins de 10 minutes à pied. Niveau transports, il y a deux gares (Vernon-Giverny et Gaillon-Aubevoye) à moins de 10 minutes en voiture. On trouve un accès à l'autoroute A13 à 6 km et Évreux se trouve à 21 km.
Elle est à vendre pour la somme de 410 679 €.
N'hésitez pas à prendre contact avec notre agence (Célia RENIER : 07-62-90-87-77) pour toute information sur la propriété, sur les modalités de vente ou sur les démarches à suivre.

Annonce proposée par un Agent Commercial Partenaire.

Mentions légales

Terrain proposé par un partenaire foncier selon disponibilités et autorisation de publicité au prix de 88 000 €. Hors droit d'enregistrement et frais de notaire. Terrain + Maison proposés au prix de 322 679 € (Hors branchements et raccordements, papiers peints, peintures, revêtement de sol dans les chambres. Tarif modifiable sans préavis). Etiquette énergie : A. Différents modèles disponibles pour ce terrain. Assurances et garanties du constructeur (RC professionnelle, décennale, dommage ouvrage, garantie de remboursement de l'acompte, livraison à prix et délai convenu) : https://www.maisons-balency.fr/informations-legales/. HEXAOM Services est enregistré auprès de l'ORIAS en tant que Courtier en financement, Niveau 1, sous le numéro 14001345.

Contactez l'agence de Boos

02 35 80 66 66

    * Champs obligatoires

    Vos informations sont traitées par HEXAOM et transmises à un conseiller commercial qui vous contactera afin de répondre à votre demande. Les plans et images présentés sur notre site sont la propriété d’HEXAOM et ne peuvent pas être reproduits sans son accord. Pour retrouver notre politique de protection des données personnelles et exercer vos droits conformément à la « loi informatique et liberté » cliquez-ici.