Maison neuve à
Saint-Pierre-du-Perray
(91280) Référence :
KM2332426_3
Prix du projet : Maison avec Terrain
prix 330 000 €
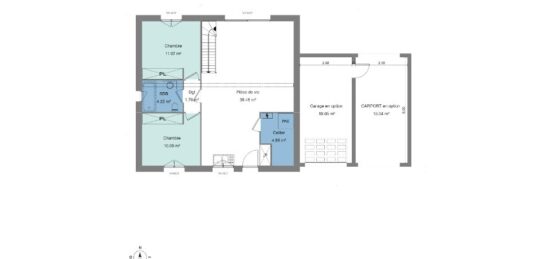
- 3 pièces
- 4 chambres
- Surface maison 103 m2
🌿 SAINT-PIERRE-DU-PERRAY (91280) - Terrain à bâtir de 500 m²
Découvrez ce superbe terrain à bâtir de 500 m², situé dans un secteur résidentiel calme et recherché de Saint-Pierre-du-Perray, à proximité immédiate du centre-ville, des écoles, commerces et transports (RER D et bus).
Ce terrain non viabilisé offre un beau potentiel pour concrétiser votre projet de construction sur mesure. Son environnement paisible et verdoyant séduira les familles à la recherche d'un cadre de vie agréable, tout en restant proche des grands axes et du centre commercial Carré Sénart.
Nous vous proposons d'y construire une maison neuve conforme à la réglementation RE2020, alliant confort, modernité et performance énergétique.
Chez Maisons Balency - Agence d'Ormoy, nous vous accompagnons de A à Z : étude du terrain, conception des plans, démarches administratives et construction personnalisée.
📞 Contactez-nous dès aujourd'hui au 06 49 43 56 27 pour votre projet à Saint-Pierre-du-Perray !
Annonce proposée par un Agent Commercial Partenaire.
Mentions légales
Terrain proposé par un partenaire foncier selon disponibilités et autorisation de publicité au prix de 175 000 €. Hors droit d'enregistrement et frais de notaire. Maison proposée, avec un contrat de construction de maison individuelle, dans le cadre de la loi du 19/12/1990, au prix de 155 000 € (Hors branchements et raccordements, papiers peints, peintures, revêtement de sol dans les chambres, qui sont chiffrés dans les travaux qui restent à charge du client. Tarif modifiable sans préavis). Étiquette énergie : A. Différents modèles disponibles pour ce terrain. Assurances et garanties du constructeur comprises (RC professionnelle, décennale, dommage ouvrage).Agence Maisons Balency de Ormoy (91540)
- Téléphone :
- 09 67 70 15 81
- Adressse :
- 23 chemin de Tournenfils - 1er étage
91540 Ormoy, France
