Maison neuve à
Saint-Pierre-du-Vauvray (27430) Référence : SH2458920_1

Prix du projet : Maison avec Terrain

prix 279 000 €

  • 6 pièces
  • 4 chambres
  • Surface maison 117 m2

VENTE d'une maison F6 (117 m²) à Saint-Pierre-du-Vauvray
EMPLACEMENT PRIVILÉGIÉ - MAISON 6 PIÈCES NEUVE
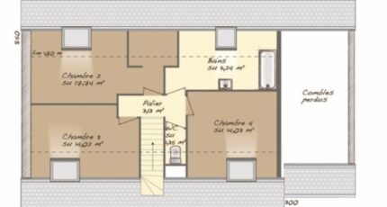
En vente à deux pas de Rouen, votre agence Maisons Balency Louviers est heureuse de vous proposer cette maison de 6 pièces de plain-pied de 117 m² bénéficiant d'un emplacement privilégié dans Saint-Pierre-du-Vauvray (27430). Elle propose quatre chambres, une cuisine et deux salles de bains.
Le terrain du bien est de 715 m².
La maison est neuve.
Cette maison se situe dans un quartier recherché. On y trouve des établissements scolaires primaires. Niveau transports, on trouve la gare Saint-Pierre-du-Vauvray à moins de 10 minutes à pied. Les autoroutes A13 et A154 et la nationale N154 sont accessibles à moins de 7 km. Il y a un tennis, quatre commerces, une supérette et un bureau de poste à proximité.
Son prix de vente est de 279 000 €.
Contactez notre agence (HOTTE Sébastien : 06-15-58-21-40) pour tout renseignement sur la propriété, sur les modalités de vente ou sur les démarches à suivre. Maisons Balency Louviers est là pour vous accompagner dans tous vos projets immobiliers.

Annonce proposée par un Agent Commercial Partenaire.

Mentions légales

Terrain proposé par un partenaire foncier selon disponibilités et autorisation de publicité au prix de 59 000 €. Hors droit d'enregistrement et frais de notaire. Terrain + Maison proposés au prix de 279 000 € (Hors branchements et raccordements, papiers peints, peintures, revêtement de sol dans les chambres. Tarif modifiable sans préavis). Etiquette énergie : A. Différents modèles disponibles pour ce terrain. Assurances et garanties du constructeur (RC professionnelle, décennale, dommage ouvrage, garantie de remboursement de l'acompte, livraison à prix et délai convenu) : https://www.maisons-balency.fr/informations-legales/. HEXAOM Services est enregistré auprès de l'ORIAS en tant que Courtier en financement, Niveau 1, sous le numéro 14001345.

Contactez l'agence de Louviers

02 32 51 43 53

    * Champs obligatoires

    Vos informations sont traitées par HEXAOM et transmises à un conseiller commercial qui vous contactera afin de répondre à votre demande. Les plans et images présentés sur notre site sont la propriété d’HEXAOM et ne peuvent pas être reproduits sans son accord. Pour retrouver notre politique de protection des données personnelles et exercer vos droits conformément à la « loi informatique et liberté » cliquez-ici.