Maison neuve à
Saint-Pierre-lès-Elbeuf (76320) Référence : MJ2373480_1

Prix du projet : Maison avec Terrain

prix 269 000 €

  • 6 pièces
  • 4 chambres
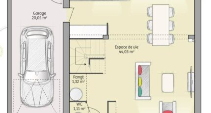
  • Surface maison 91 m2

VENTE d'une maison de 6 pièces (91 m²) à Martot
QUARTIER RECHERCHÉ - MAISON 6 PIÈCES NEUVE
À vendre : située à deux pas de Rouen, nous vous proposons cette maison de 6 pièces de 91 m² dans un secteur attractif de Martot (27340).
Il s'agit d'une maison de 2 niveaux. Elle propose quatre chambres, une cuisine et une salle de bains. La maison est neuve.
Le terrain de la propriété est de 703 m².
Le bien se trouve dans un quartier recherché. On y trouve une école primaire. Niveau transports, il y a cinq gares à moins de 10 minutes en voiture. Les autoroutes A13 et A139 et la nationale N138 sont accessibles à moins de 7 km. On trouve un tennis et un commerce à quelques minutes du logement.
Il est à vendre pour la somme de 269 000 €.
Contactez Michael JOURDON (tél : 06.43.05.84.44) pour tout renseignement sur la maison, sur les démarches à suivre et sur les modalités de vente.

Annonce proposée par un Agent Commercial Partenaire.

Mentions légales

Terrain proposé par un partenaire foncier selon disponibilités et autorisation de publicité au prix de 96 000 €. Hors droit d'enregistrement et frais de notaire. Terrain + Maison proposés au prix de 173 000 € (Hors branchements et raccordements, papiers peints, peintures, revêtement de sol dans les chambres. Tarif modifiable sans préavis). Etiquette énergie : A. Différents modèles disponibles pour ce terrain. Assurances et garanties du constructeur (RC professionnelle, décennale, dommage ouvrage, garantie de remboursement de l'acompte, livraison à prix et délai convenu) : https://www.maisons-balency.fr/informations-legales/. HEXAOM Services est enregistré auprès de l'ORIAS en tant que Courtier en financement, Niveau 1, sous le numéro 14001345.

Contactez l'agence de Boos

02 35 80 66 66

    * Champs obligatoires

    Vos informations sont traitées par HEXAOM et transmises à un conseiller commercial qui vous contactera afin de répondre à votre demande. Les plans et images présentés sur notre site sont la propriété d’HEXAOM et ne peuvent pas être reproduits sans son accord. Pour retrouver notre politique de protection des données personnelles et exercer vos droits conformément à la « loi informatique et liberté » cliquez-ici.