Maison neuve à
Saint-Pierre-lès-Elbeuf (76320) Référence : MJ2373480_2

Prix du projet : Maison avec Terrain

prix 299 900 €

  • 6 pièces
  • 5 chambres
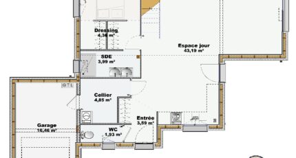
  • Surface maison 114 m2

Maison T6 (114 m²) en vente à Martot
QUARTIER RECHERCHÉ - MAISON 6 PIÈCES NEUVE
À quelques kilomètres de Rouen, nous sommes heureux de vous proposer cette maison de 6 pièces de 114 m² nichée dans un quartier prisé de Martot (27340). Elle offre cinq chambres, une cuisine et deux salles de bains.
Le terrain de la propriété est de 703 m².
Cette maison comporte 2 niveaux. Elle est neuve.
La maison se trouve dans un secteur convoité. On y trouve une école primaire. Niveau transports en commun, il y a cinq gares à moins de 10 minutes en voiture. Les autoroutes A13 et A139 et la nationale N138 sont accessibles à moins de 7 km. On trouve un tennis et un commerce à proximité de la maison.
Elle est proposée à l'achat pour 299 900 €.
Contactez Michael JOURDON (tél : 06.43.05.84.44) pour plus d'informations sur la maison, sur les modalités de vente ou sur les démarches à suivre. Maisons Balency Boos est là pour vous accompagner dans tous vos projets immobiliers.

Annonce proposée par un Agent Commercial Partenaire.

Mentions légales

Terrain proposé par un partenaire foncier selon disponibilités et autorisation de publicité au prix de 96 000 €. Hors droit d'enregistrement et frais de notaire. Terrain + Maison proposés au prix de 203 900 € (Hors branchements et raccordements, papiers peints, peintures, revêtement de sol dans les chambres. Tarif modifiable sans préavis). Etiquette énergie : A. Différents modèles disponibles pour ce terrain. Assurances et garanties du constructeur (RC professionnelle, décennale, dommage ouvrage, garantie de remboursement de l'acompte, livraison à prix et délai convenu) : https://www.maisons-balency.fr/informations-legales/. HEXAOM Services est enregistré auprès de l'ORIAS en tant que Courtier en financement, Niveau 1, sous le numéro 14001345.

Contactez l'agence de Boos

02 35 80 66 66

    * Champs obligatoires

    Vos informations sont traitées par HEXAOM et transmises à un conseiller commercial qui vous contactera afin de répondre à votre demande. Les plans et images présentés sur notre site sont la propriété d’HEXAOM et ne peuvent pas être reproduits sans son accord. Pour retrouver notre politique de protection des données personnelles et exercer vos droits conformément à la « loi informatique et liberté » cliquez-ici.