Maison neuve à
Saint-Pierre-lès-Elbeuf (76320) Référence : MJ2373480_7

Prix du projet : Maison avec Terrain

prix 405 000 €

  • 9 pièces
  • 4 chambres
  • Surface maison 186 m2

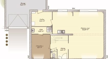
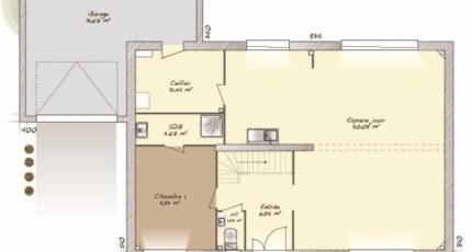
VENTE d'une maison T9 (186 m²) à Martot
QUARTIER RECHERCHÉ - MAISON 9 PIÈCES NEUVE
À vendre : à deux pas de Rouen, votre agence Maisons Balency Boos est heureuse de vous proposer cette maison de 9 pièces de 186 m² et de 703 m² de terrain située dans un secteur recherché de Martot (27340). Elle compte quatre chambres, une cuisine et deux salles de bains.
Cette maison comporte 2 niveaux. Elle est neuve.
Cette maison se trouve dans un quartier prisé. On y trouve une école primaire. Côté transports en commun, il y a cinq gares à moins de 10 minutes en voiture. Les autoroutes A13 et A139 et la nationale N138 sont accessibles à moins de 7 km. On trouve un tennis et un commerce à quelques minutes du bien.
Elle est proposée à l'achat pour 405 000 €.
Prenez contact avec Michael JOURDON (tél : 06.43.05.84.44) pour toute question sur la maison.

Annonce proposée par un Agent Commercial Partenaire.

Mentions légales

Terrain proposé par un partenaire foncier selon disponibilités et autorisation de publicité au prix de 96 000 €. Hors droit d'enregistrement et frais de notaire. Terrain + Maison proposés au prix de 309 000 € (Hors branchements et raccordements, papiers peints, peintures, revêtement de sol dans les chambres. Tarif modifiable sans préavis). Etiquette énergie : A. Différents modèles disponibles pour ce terrain. Assurances et garanties du constructeur (RC professionnelle, décennale, dommage ouvrage, garantie de remboursement de l'acompte, livraison à prix et délai convenu) : https://www.maisons-balency.fr/informations-legales/. HEXAOM Services est enregistré auprès de l'ORIAS en tant que Courtier en financement, Niveau 1, sous le numéro 14001345.

Contactez l'agence de Boos

02 35 80 66 66

    * Champs obligatoires

    Vos informations sont traitées par HEXAOM et transmises à un conseiller commercial qui vous contactera afin de répondre à votre demande. Les plans et images présentés sur notre site sont la propriété d’HEXAOM et ne peuvent pas être reproduits sans son accord. Pour retrouver notre politique de protection des données personnelles et exercer vos droits conformément à la « loi informatique et liberté » cliquez-ici.