Maison neuve à
Saint-Prix
(95390) Référence :
CT2414682_4
Prix du projet : Maison avec Terrain
prix 849 700 €
- 7 pièces
- 5 chambres
- Surface maison 170 m2
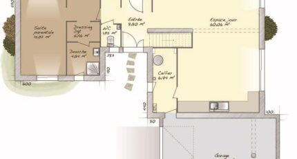
VENTE d'une maison F7 (170 m²) à Saint-Prix
IDÉALEMENT SITUÉE - MAISON 7 PIÈCES NEUVE
À vendre : à quelques minutes du Transilien H (gare de Gros Noyer Saint-Prix, 25 min de Paris), Maisons Balency Baillet-en-France vous propose cette maison de 7 pièces de plain-pied de 170 m² et de 935 m² de terrain idéalement située dans Saint-Prix (95390).
Elle offre cinq chambres, une cuisine et trois salles de bains. La maison est neuve.
La propriété se trouve dans un secteur attractif. Il y a cinq établissements scolaires à moins de 10 minutes à pied, tout comme une structure d'accueil pour la petite enfance. Niveau transports, on trouve les lignes C et D du RER ainsi que 44 gares à moins de 10 minutes en voiture. Il y a un tennis, trois boulangeries, des commerces, un supermarché, une épicerie et un bureau de poste à quelques minutes.
Elle est proposée à l'achat pour 849 700 €.
N'hésitez pas à prendre contact avec notre agence (Christophe TALAMONI : 06-49-55-08-27) pour plus d'informations sur la maison.
Annonce proposée par un Agent Commercial Partenaire.
Mentions légales
Terrain proposé par un partenaire foncier selon disponibilités et autorisation de publicité au prix de 479 000 €. Hors droit d'enregistrement et frais de notaire. Terrain + Maison proposés au prix de 849 700 € (Hors branchements et raccordements, papiers peints, peintures, revêtement de sol dans les chambres. Tarif modifiable sans préavis). Etiquette énergie : A. Différents modèles disponibles pour ce terrain. Assurances et garanties du constructeur (RC professionnelle, décennale, dommage ouvrage, garantie de remboursement de l'acompte, livraison à prix et délai convenu) : https://www.maisons-balency.fr/informations-legales/. HEXAOM Services est enregistré auprès de l'ORIAS en tant que Courtier en financement, Niveau 1, sous le numéro 14001345.Agence Maisons Balency de Baillet-en-France (95560)
- Téléphone :
- 01 34 46 05 23
- Adressse :
- 81 rue de Paris
95560 Baillet-en-France, France
