Maison neuve à
Saint-Quentin-la-Poterie (30700) Référence : PP2419855_1

Prix du projet : Maison avec Terrain

prix 412 400 €

  • 6 pièces
  • 3 chambres
  • Surface maison 95 m2

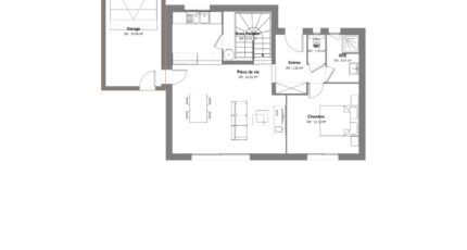
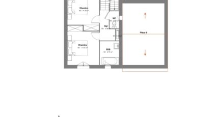
VENTE : maison de 6 pièces (95 m²) à Saint-Quentin-la-Poterie
EMPLACEMENT PRIVILÉGIÉ - MAISON 6 PIÈCES NEUVE
En vente à deux pas de Nîmes, Maisons Balency Uzès vous propose cette maison de 6 pièces de 95 m² et de 816 m² de terrain bénéficiant d'un emplacement privilégié dans Saint-Quentin-la-Poterie (30700). Son intérieur se divise en trois chambres, une cuisine et deux salles de bains.
C'est une maison de 2 niveaux. Elle est neuve.
Le bien se trouve dans un secteur prisé. Il y a l'École Élémentaire le Grand Jardin, l'École Primaire Privée la Sainte-Famille et l'École Maternelle Publique le Grand Jardin à moins de 10 minutes à pied. L'autoroute A9 et les nationales N100, N106 et N86 sont accessibles à moins de 20 km. On trouve un tennis, trois boulangeries, des commerces, un bureau de poste, une supérette et une épicerie à proximité de la maison.
Son prix de vente est de 412 400 €.
Contactez Pascale PIEL (tél : O6-O1-26-64-83) pour obtenir de plus amples renseignements sur la maison, sur les démarches à suivre ou sur les modalités de vente. Maisons Balency Uzès vous accompagne dans tous vos projets immobiliers et dans toutes vos démarches.

Mentions légales

Terrain proposé par un partenaire foncier selon disponibilités et autorisation de publicité au prix de 195 520 €. Hors droit d'enregistrement et frais de notaire. Terrain + Maison proposés au prix de 412 400 € (Hors branchements et raccordements, papiers peints, peintures, revêtement de sol dans les chambres. Tarif modifiable sans préavis). Etiquette énergie : A. Différents modèles disponibles pour ce terrain. Assurances et garanties du constructeur (RC professionnelle, décennale, dommage ouvrage, garantie de remboursement de l'acompte, livraison à prix et délai convenu) : https://www.maisons-balency.fr/informations-legales/. HEXAOM Services est enregistré auprès de l'ORIAS en tant que Courtier en financement, Niveau 1, sous le numéro 14001345.

Contactez l'agence de Uzès

04 66 57 25 45

    * Champs obligatoires

    Vos informations sont traitées par HEXAOM et transmises à un conseiller commercial qui vous contactera afin de répondre à votre demande. Les plans et images présentés sur notre site sont la propriété d’HEXAOM et ne peuvent pas être reproduits sans son accord. Pour retrouver notre politique de protection des données personnelles et exercer vos droits conformément à la « loi informatique et liberté » cliquez-ici.