Maison neuve à
Saint-Quentin-la-Poterie (30700) Référence : PP2426882_2

Prix du projet : Maison avec Terrain

prix 440 700 €

  • 5 pièces
  • 4 chambres
  • Surface maison 113 m2

VENTE d'une maison de 5 pièces (113 m²) à Saint-Quentin-la-Poterie

IDIDÉALEMENT SITUÉE - CONSTRUISEZ VOTRE MAISON A OSSATURE BOIS :
- Ecologique et durable
- Isolation performante, conforme à la norme RE 2020
- Construction rapide et maitrisée
- Faible impact carbone et économie d'énergie

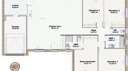
À 26 km de Nîmes, notre agence Maisons Balency Uzès est ravie de vous proposer en vente, idéalement située dans Saint-Quentin-la-Poterie (30700), cette maison de 5 pièces de plain-pied de 113 m² et de 810 m² de terrain.
Conçue de plain-pied, elle inclut quatre chambres, une cuisine et deux salles de bains. La maison est neuve.
Cette maison se situe dans un quartier attractif. On trouve l'École Élémentaire le Grand Jardin, l'École Primaire Privée la Sainte-Famille et l'École Maternelle Publique le Grand Jardin à moins de 10 minutes à pied. L'autoroute A9 et les nationales N100, N106 et N86 sont accessibles à moins de 20 km. Il y a un tennis, trois boulangeries, des commerces, une épicerie, un bureau de poste et une supérette à proximité.
Son prix de vente est de 440 700 €.
Contactez notre constructeur (Pascale PIEL : O6-O1-26-64-83) pour tout renseignement sur la propriété. Maisons Balency Uzès est là pour vous accompagner dans tous vos projets immobiliers.

Mentions légales

Terrain proposé par un partenaire foncier selon disponibilités et autorisation de publicité au prix de 195 520 €. Hors droit d'enregistrement et frais de notaire. Terrain + Maison proposés au prix de 440 700 € (Hors branchements et raccordements, papiers peints, peintures, revêtement de sol dans les chambres. Tarif modifiable sans préavis). Etiquette énergie : A. Différents modèles disponibles pour ce terrain. Assurances et garanties du constructeur (RC professionnelle, décennale, dommage ouvrage, garantie de remboursement de l'acompte, livraison à prix et délai convenu) : https://www.maisons-balency.fr/informations-legales/. HEXAOM Services est enregistré auprès de l'ORIAS en tant que Courtier en financement, Niveau 1, sous le numéro 14001345.

Contactez l'agence de Uzès

04 66 57 25 45

    * Champs obligatoires

    Vos informations sont traitées par HEXAOM et transmises à un conseiller commercial qui vous contactera afin de répondre à votre demande. Les plans et images présentés sur notre site sont la propriété d’HEXAOM et ne peuvent pas être reproduits sans son accord. Pour retrouver notre politique de protection des données personnelles et exercer vos droits conformément à la « loi informatique et liberté » cliquez-ici.