Maison neuve à
Saint-Rémy-lès-Chevreuse
(78470) Référence :
TD2455666_2
Prix du projet : Maison avec Terrain
prix 655 320 €
- 7 pièces
- 4 chambres
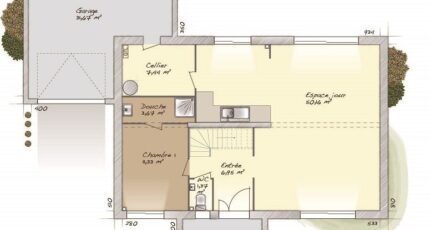
- Surface maison 160 m2
Saint-Rémy-lès-Chevreuse : maison F7 (160 m²) en vente
IDÉALEMENT SITUÉE - MAISON 7 PIÈCES NEUVE
À vendre : au pied du RER Saint-Rémy-Lès-Chevreuse (ligne B), nous sommes ravis de vous proposer cette maison de 7 pièces de 160 m² et de 546 m² de terrain idéalement située dans Saint-Rémy-lès-Chevreuse (78470).
Cette maison possède 2 niveaux. Son intérieur compte quatre chambres, une cuisine et deux salles de bains. Cette maison est neuve.
La maison est située dans un quartier recherché. L'École Maternelle Saint-Exupéry, l'École Élémentaire Jean Jaurès et l'École Élémentaire Jean Moulin sont implantées à moins de 10 minutes à pied, tout comme une crèche. Niveau transports en commun, on trouve la station de RER Saint-Rémy-Lès-Chevreuse (ligne B) à proximité, plaçant la maison à 35 min de Paris en rer. Il y a un tennis, des commerces, une boucherie-charcuterie, un bureau de poste et trois épiceries à quelques minutes à peine. Enfin, le marché Centre-Ville anime les environs.
Elle est proposée à l'achat pour 655 320 €.
Contactez notre agence (Thibault DUTEURTRE : 06-23-41-73-81) pour toute information sur cette propriété. Concrétisez vos projets immobiliers avec Maisons Balency Coignières.
Annonce proposée par un Agent Commercial Partenaire.
Mentions légales
Terrain proposé par un partenaire foncier selon disponibilités et autorisation de publicité au prix de 279 000 €. Hors droit d'enregistrement et frais de notaire. Terrain + Maison proposés au prix de 655 320 € (Hors branchements et raccordements, papiers peints, peintures, revêtement de sol dans les chambres. Tarif modifiable sans préavis). Etiquette énergie : A. Différents modèles disponibles pour ce terrain. Assurances et garanties du constructeur (RC professionnelle, décennale, dommage ouvrage, garantie de remboursement de l'acompte, livraison à prix et délai convenu) : https://www.maisons-balency.fr/informations-legales/. HEXAOM Services est enregistré auprès de l'ORIAS en tant que Courtier en financement, Niveau 1, sous le numéro 14001345.Agence Maisons Balency de Coignières (78310)
- Téléphone :
- 01 34 61 42 59
- Adressse :
- Domexpo Ouest
78310 Coignières, France
