Maison neuve à
Saint-Rémy-l'Honoré
(78690) Référence :
TD2255987_1
Prix du projet : Maison avec Terrain
prix 609 000 €
- 7 pièces
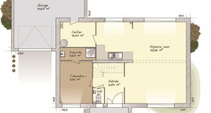
- 4 chambres
- Surface maison 160 m2
Maison T7 (160 m²) en vente à Saint-Rémy-l'Honoré
IDÉALEMENT SITUÉE - MAISON 7 PIÈCES NEUVE
À côté de la gare de Coignières (Paris à 40 min par le Transilien N), laissez vous charmer par en vente, idéalement située dans Saint-Rémy-l'Honoré (78690), cette maison de 7 pièces de 160 m² et de 1 272 m² de terrain avec vue sur jardin.
C'est une maison de 2 niveaux. Son intérieur se divise en quatre chambres, une cuisine et deux salles de bains. Cette maison est neuve.
La maison est située dans un secteur recherché. L'École Primaire Clarisse Lebel est implantée à moins de 10 minutes à pied. Il y a un tennis, une bibliothèque, un commerce et une épicerie dans les environs.
Son prix de vente est de 609 000 €.
Contactez Thibault DUTEURTRE (tél : 06-23-41-73-81) pour toute information sur la maison ou sur les modalités de vente. Maisons Balency Coignières est là pour vous accompagner dans tous vos projets immobiliers.
Annonce proposée par un Agent Commercial Partenaire.
Mentions légales
Terrain proposé par un partenaire foncier selon disponibilités et autorisation de publicité au prix de 234 000 €. Hors droit d'enregistrement et frais de notaire. Maison proposée, avec un contrat de construction de maison individuelle, dans le cadre de la loi du 19/12/1990, au prix de 375 000 € (Hors branchements et raccordements, papiers peints, peintures, revêtement de sol dans les chambres, qui sont chiffrés dans les travaux qui restent à charge du client. Tarif modifiable sans préavis). Étiquette énergie : A. Différents modèles disponibles pour ce terrain. Assurances et garanties du constructeur comprises (RC professionnelle, décennale, dommage ouvrage).Agence Maisons Balency de Coignières (78310)
- Téléphone :
- 01 34 61 42 59
- Adressse :
- Domexpo Ouest
78310 Coignières, France
