Maison neuve à
Saint-Siffret
(30700) Référence :
PP2451078_2
Prix du projet : Maison avec Terrain
prix 480 400 €
- 6 pièces
- 3 chambres
- Surface maison 132 m2
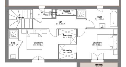
Maison de 6 pièces (132 m²) en vente à Saint-Siffret
EMPLACEMENT PRIVILÉGIÉ - MAISON 6 PIÈCES NEUVE
En vente : à deux pas de Nîmes, bénéficiant d'un emplacement d'exception dans Saint-Siffret (30700), Maisons Balency Uzès vous propose cette maison de 6 pièces de 132 m² et de 937 m² de terrain. Elle propose trois chambres, une cuisine et trois salles de bains.
Cette maison comporte 2 niveaux. Elle est neuve.
La maison se trouve dans un quartier prisé. Une école primaire y est implantée. Il y a une épicerie à quelques minutes à peine.
Elle est proposée à l'achat pour 480 400 €.
N'hésitez pas à prendre contact avec notre agence (PIEL Pascale : 06-01-26-64-83) pour obtenir de plus amples renseignements sur la maison.
Mentions légales
Terrain proposé par un partenaire foncier selon disponibilités et autorisation de publicité au prix de 190 000 €. Hors droit d'enregistrement et frais de notaire. Terrain + Maison proposés au prix de 480 400 € (Hors branchements et raccordements, papiers peints, peintures, revêtement de sol dans les chambres. Tarif modifiable sans préavis). Etiquette énergie : A. Différents modèles disponibles pour ce terrain. Assurances et garanties du constructeur (RC professionnelle, décennale, dommage ouvrage, garantie de remboursement de l'acompte, livraison à prix et délai convenu) : https://www.maisons-balency.fr/informations-legales/. HEXAOM Services est enregistré auprès de l'ORIAS en tant que Courtier en financement, Niveau 1, sous le numéro 14001345.Agence Maisons Balency de Uzès (30700)
- Téléphone :
- 04 66 57 25 45
- Adressse :
- ZI du Pont des Charrettes
30700 Uzès, France
