Maison neuve à
Saint-Sulpice-de-Favières
(91910) Référence :
RK2386863_1
Prix du projet : Maison avec Terrain
prix 563 665 €
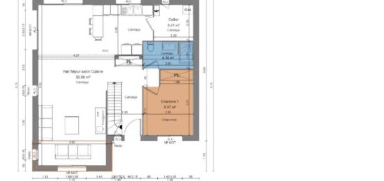
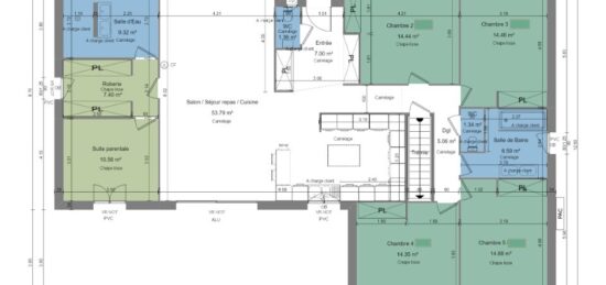
- 6 pièces
- 4 chambres
- Surface maison 114 m2
VENTE : maison T6 (114 m²) à Saint-Sulpice-de-Favières
IDÉALEMENT SITUÉE - MAISON 6 PIÈCES NEUVE
Au pied du RER C (station Breuillet Village, 40 min de Paris), à vendre idéalement située dans Saint-Sulpice-de-Favières (91910), notre agence Maisons Balency La Ville-du-Bois est ravie de vous proposer cette maison de 6 pièces de 114 m² avec vue dégagée.
Cette maison comporte 2 niveaux. Son intérieur inclut quatre chambres, une cuisine et deux salles de bains. Cette maison est neuve.
Le terrain de la propriété s'étend sur 2 710 m².
La maison est située dans un quartier recherché. Il y a l'École Maternelle les Tilleuls à moins de 10 minutes à pied. Niveau transports, on trouve la ligne de RER C (Breuillet-Village) ainsi que 12 gares à moins de 10 minutes en voiture.
Elle est à vendre pour la somme de 563 665 €.
Contactez notre constructeur (Ramzi KRIFA : 06-29-51-92-49) pour plus d'informations sur la maison. Maisons Balency La Ville-du-Bois est là pour vous accompagner à toutes les étapes de votre projet.
Mentions légales
Terrain proposé par un partenaire foncier selon disponibilités et autorisation de publicité au prix de 299 000 €. Hors droit d'enregistrement et frais de notaire. Terrain + Maison proposés au prix de 264 665 € (Hors branchements et raccordements, papiers peints, peintures, revêtement de sol dans les chambres. Tarif modifiable sans préavis). Etiquette énergie : A. Différents modèles disponibles pour ce terrain. Assurances et garanties du constructeur (RC professionnelle, décennale, dommage ouvrage, garantie de remboursement de l'acompte, livraison à prix et délai convenu) : https://www.maisons-balency.fr/informations-legales/. HEXAOM Services est enregistré auprès de l'ORIAS en tant que Courtier en financement, Niveau 1, sous le numéro 14001345.Agence Maisons Balency de La Ville-du-Bois (91620)
- Téléphone :
- 01 64 49 21 13
- Adressse :
- Domexpo Sud - RN20
91620 La Ville-du-Bois, France
