Maison neuve à
Saint-Théodorit (30260) Référence : PP2385859_3

Prix du projet : Maison avec Terrain

prix 342 180 €

  • 5 pièces
  • 4 chambres
  • Surface maison 113 m2

VENTE d'une maison F5 (113 m²) à Saint-Théodorit
IDÉALEMENT SITUÉE - CONSTRUISEZ VOTRE MAISON A OSSATURE BOIS :
- Ecologique et durable
- Isolation performante, conforme à la norme RE 2020
- Construction rapide et maitrisée
- Faible impact carbone et économie d'énergie

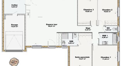
À vendre : à 42 km de la mer Méditerranée et à deux pas de Nîmes, notre agence Maisons Balency Uzès est heureuse de vous proposer, idéalement située dans Saint-Théodorit (30260), cette maison de 5 pièces de plain-pied de 113 m² et de 603 m² de terrain. Conçue de plain-pied, elle inclut quatre chambres, une cuisine et deux salles de bains.
Cette maison est neuve.
La maison se trouve dans un quartier convoité. Une école maternelle y est implantée. La nationale N106 est accessible à 11 km.
Elle est proposée à l'achat pour 342 180 €.
N'hésitez pas à prendre contact avec notre agence (Pascale PIEL : O6-O1-26-64-83) pour tout renseignement sur la maison ou sur les modalités de vente. Maisons Balency Uzès vous accompagne dans tous vos projets immobiliers et à toutes les étapes de l'achat.

Mentions légales

Terrain proposé par un partenaire foncier selon disponibilités et autorisation de publicité au prix de 97 000 €. Hors droit d'enregistrement et frais de notaire. Terrain + Maison proposés au prix de 245 180 € (Hors branchements et raccordements, papiers peints, peintures, revêtement de sol dans les chambres. Tarif modifiable sans préavis). Etiquette énergie : A. Différents modèles disponibles pour ce terrain. Assurances et garanties du constructeur (RC professionnelle, décennale, dommage ouvrage, garantie de remboursement de l'acompte, livraison à prix et délai convenu) : https://www.maisons-balency.fr/informations-legales/. HEXAOM Services est enregistré auprès de l'ORIAS en tant que Courtier en financement, Niveau 1, sous le numéro 14001345.

Contactez l'agence de Uzès

04 66 57 25 45

    * Champs obligatoires

    Vos informations sont traitées par HEXAOM et transmises à un conseiller commercial qui vous contactera afin de répondre à votre demande. Les plans et images présentés sur notre site sont la propriété d’HEXAOM et ne peuvent pas être reproduits sans son accord. Pour retrouver notre politique de protection des données personnelles et exercer vos droits conformément à la « loi informatique et liberté » cliquez-ici.