Maison neuve à
Saint-Théodorit (30260) Référence : PP2385956_1

Prix du projet : Maison avec Terrain

prix 307 200 €

  • 6 pièces
  • 3 chambres
  • Surface maison 100 m2

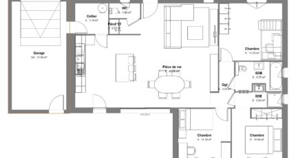
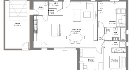
Saint-Théodorit : maison de 6 pièces (100 m²) en vente
IDÉALEMENT SITUÉE - MAISON 6 PIÈCES NEUVE
En vente à 42 km de la mer Méditerranée et à 24 km de Nîmes, nous vous proposons cette maison de 6 pièces de plain-pied de 100 m², idéalement située dans Saint-Théodorit (30260).
Son intérieur inclut trois chambres, une cuisine et deux salles de bains. Cette maison est neuve.
Le terrain du bien s'étend sur 603 m².
La maison se situe dans un quartier prisé. On y trouve une école maternelle. Il y a un accès à la nationale N106 à 11 km.
Elle est proposée à l'achat pour 307 200 €.
Prenez contact avec notre agence (Pascale PIEL : O6-O1-26-64-83) pour toute information sur le bien. Concrétisez vos projets immobiliers avec Maisons Balency Uzès.

Mentions légales

Terrain proposé par un partenaire foncier selon disponibilités et autorisation de publicité au prix de 97 000 €. Hors droit d'enregistrement et frais de notaire. Terrain + Maison proposés au prix de 210 200 € (Hors branchements et raccordements, papiers peints, peintures, revêtement de sol dans les chambres. Tarif modifiable sans préavis). Etiquette énergie : A. Différents modèles disponibles pour ce terrain. Assurances et garanties du constructeur (RC professionnelle, décennale, dommage ouvrage, garantie de remboursement de l'acompte, livraison à prix et délai convenu) : https://www.maisons-balency.fr/informations-legales/. HEXAOM Services est enregistré auprès de l'ORIAS en tant que Courtier en financement, Niveau 1, sous le numéro 14001345.

Contactez l'agence de Uzès

04 66 57 25 45

    * Champs obligatoires

    Vos informations sont traitées par HEXAOM et transmises à un conseiller commercial qui vous contactera afin de répondre à votre demande. Les plans et images présentés sur notre site sont la propriété d’HEXAOM et ne peuvent pas être reproduits sans son accord. Pour retrouver notre politique de protection des données personnelles et exercer vos droits conformément à la « loi informatique et liberté » cliquez-ici.