Maison neuve à
Sainte-Geneviève
(60730) Référence :
AF2362346_3
Prix du projet : Maison avec Terrain
prix 300 000 €
- 6 pièces
- 4 chambres
- Surface maison 105 m2
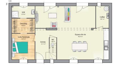
Sainte-Geneviève : maison F6 (105 m²) à vendre
PROCHE DE CERGY - MAISON 6 PIÈCES NEUVE
À quelques kilomètres de Cergy, à vendre à Sainte-Geneviève (60730), notre agence Maisons Balency Pierrelaye est ravie de vous présenter cette maison de 6 pièces de 105 m².
Cette maison compte 2 niveaux. Elle comporte quatre chambres, une cuisine et deux salles de bains. Cette maison est neuve.
Le terrain de la propriété est de 820 m².
Il y a quatre établissements scolaires à moins de 10 minutes à pied. Côté transports en commun, on trouve huit gares à moins de 10 minutes en voiture. On trouve un accès à l'autoroute A16 à 10 km. Il y a une bibliothèque, un tennis, trois boulangeries, des commerces, un supermarché, une épicerie et une boucherie-charcuterie à proximité.
Son prix de vente est de 300 000 €.
N'hésitez pas à prendre contact avec notre agence (FLIPPE Antoine : 07-82-59-37-75) pour toute information sur ce bien, sur les démarches à suivre ou sur les modalités de vente. Maisons Balency Pierrelaye vous accompagne à toutes les étapes de l'achat et dans tous vos projets immobiliers.
Annonce proposée par un Agent Commercial Partenaire.
Mentions légales
Terrain proposé par un partenaire foncier selon disponibilités et autorisation de publicité au prix de 99 000 €. Hors droit d'enregistrement et frais de notaire. Terrain + Maison proposés au prix de 300 000 € (Hors branchements et raccordements, papiers peints, peintures, revêtement de sol dans les chambres. Tarif modifiable sans préavis). Etiquette énergie : A. Différents modèles disponibles pour ce terrain. Assurances et garanties du constructeur (RC professionnelle, décennale, dommage ouvrage, garantie de remboursement de l'acompte, livraison à prix et délai convenu) : https://www.maisons-balency.fr/informations-legales/. HEXAOM Services est enregistré auprès de l'ORIAS en tant que Courtier en financement, Niveau 1, sous le numéro 14001345.Agence Maisons Balency de Baillet-en-France (95560)
- Téléphone :
- 01 34 46 05 23
- Adressse :
- 81 rue de Paris
95560 Baillet-en-France, France
