Maison neuve à
Sainte-Hélène-Bondeville (76400) Référence : MJ2253354_2

Prix du projet : Maison avec Terrain

prix 267 000 €

  • 5 pièces
  • 4 chambres
  • Surface maison 113 m2

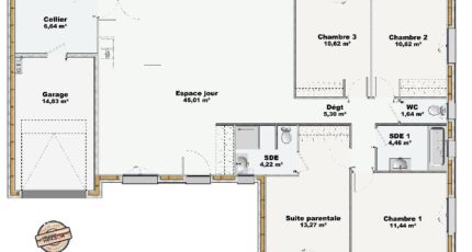
VENTE d'une maison F5 (113 m²) à Sainte-Hélène-Bondeville
QUARTIER RECHERCHÉ - MAISON 5 PIÈCES NEUVE
En vente à 4 km de la Manche, nous sommes ravis de vous présenter, située dans un quartier convoité de Sainte-Hélène-Bondeville (76400), cette maison de 5 pièces de plain-pied de 113 m² et de 900 m² de terrain. Son intérieur est composé de quatre chambres, d'une cuisine et de deux salles de bains.
La maison est neuve.
Cette maison est située dans un secteur prisé. Une école primaire y est implantée. Niveau transports, il y a la gare Fécamp à moins de 10 minutes en voiture.
Elle est proposée à l'achat pour 267 000 €.
Prenez contact avec notre agence (JOURDON Michael : 0643058444) pour toute information sur la propriété. MICHAEL vous accompagne dans toutes vos démarches et à toutes les étapes de l'achat.

Annonce proposée par un Agent Commercial Partenaire.

Mentions légales

Terrain proposé par un partenaire foncier selon disponibilités et autorisation de publicité au prix de 59 000 €. Hors droit d'enregistrement et frais de notaire. Maison proposée, avec un contrat de construction de maison individuelle, dans le cadre de la loi du 19/12/1990, au prix de 208 000 € (Hors branchements et raccordements, papiers peints, peintures, revêtement de sol dans les chambres, qui sont chiffrés dans les travaux qui restent à charge du client. Tarif modifiable sans préavis). Étiquette énergie : A. Différents modèles disponibles pour ce terrain. Assurances et garanties du constructeur comprises (RC professionnelle, décennale, dommage ouvrage).

Contactez l'agence de Boos

02 35 80 66 66

    * Champs obligatoires

    Vos informations sont traitées par HEXAOM et transmises à un conseiller commercial qui vous contactera afin de répondre à votre demande. Les plans et images présentés sur notre site sont la propriété d’HEXAOM et ne peuvent pas être reproduits sans son accord. Pour retrouver notre politique de protection des données personnelles et exercer vos droits conformément à la « loi informatique et liberté » cliquez-ici.