Maison neuve à
Sainte-Marguerite-sur-Duclair (76480) Référence : EL2321494_2

Prix du projet : Maison avec Terrain

prix 259 600 €

  • 9 pièces
  • 5 chambres
  • Surface maison 124 m2

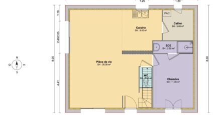
Maison F9 (124 m²) à vendre à Sainte-Marguerite-sur-Duclair
IDÉALEMENT SITUÉE - MAISON 9 PIÈCES NEUVE
En vente : à 39 km de la Manche et à 22 km de Rouen, idéalement située dans Sainte-Marguerite-sur-Duclair (76480), venez découvrir cette maison de 9 pièces de 124 m² et de 938 m² de terrain.
Il s'agit d'une maison de 2 niveaux. Son intérieur inclut cinq chambres, une cuisine et trois salles de bains. La maison est neuve.
Cette maison est située dans un secteur attractif. L'École Maternelle Mary Poppins se trouve à moins de 10 minutes à pied. Côté transports, il y a deux gares (Barentin et Pavilly) à moins de 10 minutes en voiture. L'autoroute A150 est accessible à 9 km. On trouve une boulangerie, un commerce et une épicerie dans les environs.
Son prix de vente est de 259 600 €.
Contactez Aurélien LEOVANT (tél : 02-35-80-66-66) pour plus de renseignements sur le bien ou sur les modalités de vente.

Annonce proposée par un Agent Commercial Partenaire.

Mentions légales

Terrain proposé par un partenaire foncier selon disponibilités et autorisation de publicité au prix de 69 000 €. Hors droit d'enregistrement et frais de notaire. Terrain + Maison proposés au prix de 190 600 € (Hors branchements et raccordements, papiers peints, peintures, revêtement de sol dans les chambres. Tarif modifiable sans préavis). Etiquette énergie : A. Différents modèles disponibles pour ce terrain. Assurances et garanties du constructeur (RC professionnelle, décennale, dommage ouvrage, garantie de remboursement de l'acompte, livraison à prix et délai convenu) : https://www.maisons-balency.fr/informations-legales/. HEXAOM Services est enregistré auprès de l'ORIAS en tant que Courtier en financement, Niveau 1, sous le numéro 14001345.

Contactez l'agence de Boos

02 35 80 66 66

    * Champs obligatoires

    Vos informations sont traitées par HEXAOM et transmises à un conseiller commercial qui vous contactera afin de répondre à votre demande. Les plans et images présentés sur notre site sont la propriété d’HEXAOM et ne peuvent pas être reproduits sans son accord. Pour retrouver notre politique de protection des données personnelles et exercer vos droits conformément à la « loi informatique et liberté » cliquez-ici.