Maison neuve à
Sainte-Marguerite-sur-Duclair (76480) Référence : EL2321494_4

Prix du projet : Maison avec Terrain

prix 262 900 €

  • 5 pièces
  • 3 chambres
  • Surface maison 90 m2

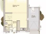
Sainte-Marguerite-sur-Duclair : maison F5 (90 m²) à vendre
IDÉALEMENT SITUÉE - MAISON 5 PIÈCES NEUVE
À 39 km de la Manche et à quelques kilomètres de Rouen, à vendre idéalement située dans Sainte-Marguerite-sur-Duclair (76480), Maisons Balency Boos vous présente cette maison de 5 pièces de 90 m².
C'est une maison de 2 niveaux. Elle offre trois chambres, une cuisine et une salle de bains. La maison est neuve.
Le terrain du bien s'étend sur 938 m².
La maison se trouve dans un secteur attractif. L'École Maternelle Mary Poppins est implantée à moins de 10 minutes à pied. Côté transports, on trouve deux gares (Barentin et Pavilly) à moins de 10 minutes en voiture. On trouve un accès à l'autoroute A150 à 9 km. Il y a une boulangerie, un commerce et une épicerie à quelques minutes à peine.
Elle est à vendre pour la somme de 262 900 €.
Prenez contact avec Aurélien LEOVANT (02-35-80-66-66) pour toute information sur le bien, sur les démarches à suivre ou sur les modalités de vente. Maisons Balency Boos est là pour vous accompagner à toutes les étapes de l'achat.

Annonce proposée par un Agent Commercial Partenaire.

Mentions légales

Terrain proposé par un partenaire foncier selon disponibilités et autorisation de publicité au prix de 69 000 €. Hors droit d'enregistrement et frais de notaire. Terrain + Maison proposés au prix de 262 900 € (Hors branchements et raccordements, papiers peints, peintures, revêtement de sol dans les chambres. Tarif modifiable sans préavis). Etiquette énergie : A. Différents modèles disponibles pour ce terrain. Assurances et garanties du constructeur (RC professionnelle, décennale, dommage ouvrage, garantie de remboursement de l'acompte, livraison à prix et délai convenu) : https://www.maisons-balency.fr/informations-legales/. HEXAOM Services est enregistré auprès de l'ORIAS en tant que Courtier en financement, Niveau 1, sous le numéro 14001345.

Contactez l'agence de Boos

02 35 80 66 66

    * Champs obligatoires

    Vos informations sont traitées par HEXAOM et transmises à un conseiller commercial qui vous contactera afin de répondre à votre demande. Les plans et images présentés sur notre site sont la propriété d’HEXAOM et ne peuvent pas être reproduits sans son accord. Pour retrouver notre politique de protection des données personnelles et exercer vos droits conformément à la « loi informatique et liberté » cliquez-ici.