Maison neuve à
Saintines
(60410) Référence :
AM2412338_1
Prix du projet : Maison avec Terrain
prix 260 000 €
- 6 pièces
- 4 chambres
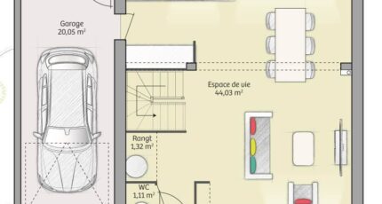
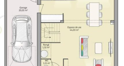
- Surface maison 91 m2
Saintines : maison F6 (91 m²) en vente
MAISON 6 PIÈCES NEUVE - PROCHE DE COMPIÈGNE
En vente : à quelques kilomètres de Compiègne, à Saintines (60410), Maisons Balency Saint-Maur-des-Fossés vous présente cette maison de 6 pièces de 91 m².
Cette maison compte 2 niveaux. Elle est composée de quatre chambres, d'une cuisine et d'une salle de bains. La maison est neuve.
Le terrain du bien est de 480 m².
Il y a l'École Primaire L. Collas à moins de 10 minutes à pied. Niveau transports, on trouve quatre gares à moins de 10 minutes en voiture. L'autoroute A1 est accessible à 6 km. Il y a une bibliothèque à proximité du logement.
Elle est proposée à l'achat pour 260 000 €.
Contactez notre agence (Aurelien MONTANIER : 06-24-66-88-34) pour toute information sur cette maison, sur les démarches à suivre ou sur les modalités de vente. Maisons Balency Saint-Maur-des-Fossés vous accompagne dans tous vos projets immobiliers et à toutes les étapes de votre projet.
Annonce proposée par un Agent Commercial Partenaire.
Mentions légales
Terrain proposé par un partenaire foncier selon disponibilités et autorisation de publicité au prix de 80 000 €. Hors droit d'enregistrement et frais de notaire. Terrain + Maison proposés au prix de 260 000 € (Hors branchements et raccordements, papiers peints, peintures, revêtement de sol dans les chambres. Tarif modifiable sans préavis). Etiquette énergie : A. Différents modèles disponibles pour ce terrain. Assurances et garanties du constructeur (RC professionnelle, décennale, dommage ouvrage, garantie de remboursement de l'acompte, livraison à prix et délai convenu) : https://www.maisons-balency.fr/informations-legales/. HEXAOM Services est enregistré auprès de l'ORIAS en tant que Courtier en financement, Niveau 1, sous le numéro 14001345.Agence Maisons Balency de Saint-Maur-des-Fossés (94100)
- Téléphone :
- 01 87 36 85 37
- Adressse :
- 12 avenue de la république
94100 Saint-Maur-des-Fossés, France
