Maison neuve à
Sannerville
(14940) Référence :
SU2385098_2
Prix du projet : Maison avec Terrain
prix 360 900 €
- 6 pièces
- 4 chambres
- Surface maison 90 m2
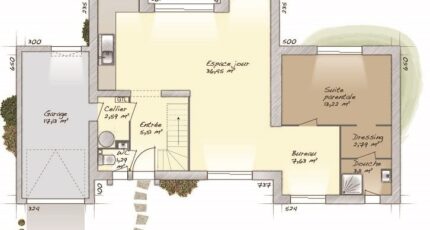
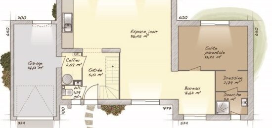
VENTE : maison F6 (90 m²) à Sannerville
MAISON 6 PIÈCES NEUVE - PROCHE DE CAEN
À vendre : localisée à 14 km des plages de Merville Franceville et à deux pas du centre-ville de Caen, Maisons Balency Caen vous présente à Sannerville (14940), cette maison de 6 pièces de 90 m² et de 522 m² de terrain. Son intérieur se divise en quatre chambres, une cuisine et deux salles de bains.
Cette maison comporte 2 niveaux. Elle est neuve.
Il y a une école primaire dans le quartier. La commune est desservie par les transports scolaires. À 10 minutes de Troarn : un bourg dynamique avec commerces et infrastructures.
À 15 minutes de Caen : accès rapide à la métropole via la D613 et la N814.
Accès A13 en moins de 5mn.
Son prix de vente est de 360 900 €.
N'hésitez pas à prendre contact avec Sophie UCENDO (06-35-39-35-17) pour toute information sur cette maison ou sur les démarches à suivre. Maisons Balency Caen est là pour vous accompagner dans tous vos projets immobiliers.
Mentions légales
Terrain proposé par un partenaire foncier selon disponibilités et autorisation de publicité au prix de 98 000 €. Hors droit d'enregistrement et frais de notaire. Terrain + Maison proposés au prix de 360 900 € (Hors branchements et raccordements, papiers peints, peintures, revêtement de sol dans les chambres. Tarif modifiable sans préavis). Etiquette énergie : A. Différents modèles disponibles pour ce terrain. Assurances et garanties du constructeur (RC professionnelle, décennale, dommage ouvrage, garantie de remboursement de l'acompte, livraison à prix et délai convenu) : https://www.maisons-balency.fr/informations-legales/. HEXAOM Services est enregistré auprès de l'ORIAS en tant que Courtier en financement, Niveau 1, sous le numéro 14001345.Agence Maisons Balency de Caen (14000)
- Téléphone :
- 02 31 50 38 15
- Adressse :
- 133, rue Saint Jean
14000 Caen, France
