Maison neuve à
Sannois
(95110) Référence :
AD2302218_1
Prix du projet : Maison avec Terrain
prix 599 200 €
- 7 pièces
- 4 chambres
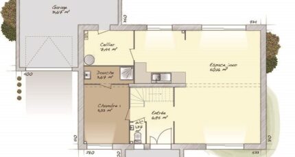
- Surface maison 160 m2
Maison T7 (160 m²) en vente à Sannois
MAISON 7 PIÈCES NEUVE
À vendre : à proximité du Transilien J (20 min de Paris), nous sommes heureux de vous proposer à Sannois (95110), cette maison de 7 pièces de 160 m². Son intérieur dispose de quatre chambres, d'une cuisine et de deux salles de bains.
Le terrain du bien est de 450 m².
Cette maison possède 2 niveaux. Elle est neuve.
Il y a des établissements scolaires de tous niveaux (de la maternelle au lycée) à moins de 10 minutes à pied, tout comme quatre structures d'accueil pour les tout-petits. Niveau transports en commun, on trouve la gare Sannois dans les alentours. Il y a une bibliothèque, des boulangeries, des commerces, deux supermarchés, des épiceries et un bureau de poste à quelques minutes à peine.
Elle est à vendre pour la somme de 599 200 €.
Contactez Arnaud DUTEURTRE (06-13-43-01-46) pour toute information sur la maison, sur les modalités de vente et sur les démarches à suivre.
Annonce proposée par un Agent Commercial Partenaire.
Mentions légales
Terrain proposé par un partenaire foncier selon disponibilités et autorisation de publicité au prix de 240 000 €. Hors droit d'enregistrement et frais de notaire. Maison proposée, avec un contrat de construction de maison individuelle, dans le cadre de la loi du 19/12/1990, au prix de 359 200 € (Hors branchements et raccordements, papiers peints, peintures, revêtement de sol dans les chambres, qui sont chiffrés dans les travaux qui restent à charge du client. Tarif modifiable sans préavis). Étiquette énergie : A. Différents modèles disponibles pour ce terrain. Assurances et garanties du constructeur comprises (RC professionnelle, décennale, dommage ouvrage).Agence Maisons Balency de Coignières (78310)
- Téléphone :
- 01 34 61 42 59
- Adressse :
- Domexpo Ouest
78310 Coignières, France
