Maison neuve à
Santeny
(94440) Référence :
AM2417503-0_1
Prix du projet : Maison avec Terrain
prix 785 000 €
- 9 pièces
- 4 chambres
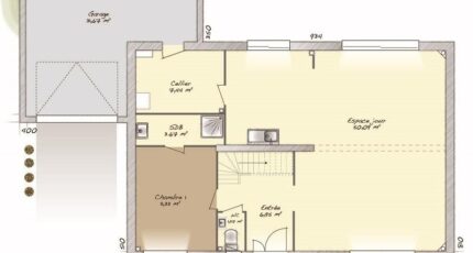
- Surface maison 186 m2
Santeny : maison T9 (186 m²) en vente
PROCHE DE PARIS - MAISON 9 PIÈCES NEUVE
Proche de la station Brunoy du RER D (25 min de Paris), votre agence Maisons Balency Saint-Maur-des-Fossés est heureuse de vous présenter cette maison de 9 pièces de 186 m² et de 1 500 m² de terrain en vente à Santeny (94440).
Il s'agit d'une maison de 2 niveaux. Elle inclut quatre chambres, une cuisine et deux salles de bains. La maison est neuve.
L'École Maternelle les 40 Arpents et l'École Élémentaire les Quarante Arpents sont implantées à moins de 10 minutes à pied. Niveau transports, il y a les lignes de RER D, A et E ainsi que neuf gares à moins de 10 minutes en voiture. On trouve un tennis, une boulangerie, deux commerces et un supermarché à proximité.
Il est proposé à l'achat pour 785 000 €.
Prenez contact avec Aurelien MONTANIER (06-24-66-88-34) pour toute information sur cette maison, sur les modalités de vente ou sur les démarches à suivre.
Annonce proposée par un Agent Commercial Partenaire.
Mentions légales
Terrain proposé par un partenaire foncier selon disponibilités et autorisation de publicité au prix de 405 000 €. Hors droit d'enregistrement et frais de notaire. Terrain + Maison proposés au prix de 380 000 € (Hors branchements et raccordements, papiers peints, peintures, revêtement de sol dans les chambres. Tarif modifiable sans préavis). Etiquette énergie : A. Différents modèles disponibles pour ce terrain. Assurances et garanties du constructeur (RC professionnelle, décennale, dommage ouvrage, garantie de remboursement de l'acompte, livraison à prix et délai convenu) : https://www.maisons-balency.fr/informations-legales/. HEXAOM Services est enregistré auprès de l'ORIAS en tant que Courtier en financement, Niveau 1, sous le numéro 14001345.Agence Maisons Balency de Saint-Maur-des-Fossés (94100)
- Téléphone :
- 01 87 36 85 37
- Adressse :
- 12 avenue de la république
94100 Saint-Maur-des-Fossés, France
