Maison neuve à
Sarcelles
(95200) Référence :
CT2342408_1
Prix du projet : Maison avec Terrain
prix 480 200 €
- 7 pièces
- 4 chambres
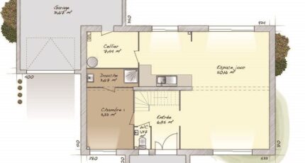
- Surface maison 140 m2
VENTE : maison de 7 pièces (140 m²) à Sarcelles
PROCHE GARE - MAISON 7 PIÈCES NEUVE
À proximité de la gare de Sarcelles-Saint-Brice (Paris à 15 min par le Transilien H), nous vous proposons cette maison de 7 pièces de 140 m² et de 400 m² de terrain avec vue sur jardin en vente proche de la gare de Sarcelles (95200). Elle dispose de quatre chambres, d'une cuisine et de deux salles de bains.
Cette maison comporte 2 niveaux. Elle est neuve.
Il y a des écoles (de la maternelle au lycée) à moins de 10 minutes à pied. Niveau transports en commun, on trouve trois lignes de RER (D, C et B) ainsi que 41 gares à moins de 10 minutes en voiture. Il y a des commerces, des boulangeries, deux supermarchés, un bureau de poste et trois boucheries-charcuteries à proximité. Enfin, le marché Rue Taillepied anime le quartier.
Elle est à vendre pour la somme de 480 200 €.
Contactez Christophe TALAMONI (tél : 06-49-55-08-27) pour plus d'informations sur la maison, sur les démarches à suivre ou sur les modalités de vente. Donnez vie à vos projets immobiliers avec Maisons Balency Baillet-en-France.
Annonce proposée par un Agent Commercial Partenaire.
Mentions légales
Terrain proposé par un partenaire foncier selon disponibilités et autorisation de publicité au prix de 190 000 €. Hors droit d'enregistrement et frais de notaire. Terrain + Maison proposés au prix de 480 200 € (Hors branchements et raccordements, papiers peints, peintures, revêtement de sol dans les chambres. Tarif modifiable sans préavis). Etiquette énergie : A. Différents modèles disponibles pour ce terrain. Assurances et garanties du constructeur (RC professionnelle, décennale, dommage ouvrage, garantie de remboursement de l'acompte, livraison à prix et délai convenu) : https://www.maisons-balency.fr/informations-legales/. HEXAOM Services est enregistré auprès de l'ORIAS en tant que Courtier en financement, Niveau 1, sous le numéro 14001345.Agence Maisons Balency de Baillet-en-France (95560)
- Téléphone :
- 01 34 46 05 23
- Adressse :
- 81 rue de Paris
95560 Baillet-en-France, France
