Maison neuve à
Sauchay (76630) Référence : SEMA9017_10

Prix du projet : Maison avec Terrain

prix 426 000 €

  • 8 pièces
  • 5 chambres
  • Surface maison 200 m2

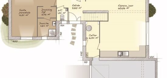
Maison F8 (200 m²) en vente à Sauchay
PROCHE DE DIEPPE - MAISON 8 PIÈCES NEUVE
À 6 km de la Manche et à 9 km de Dieppe, ayez le coup de coeur pour cette maison de 8 pièces de 200 m² et de 800 m² de terrain en vente à Sauchay (76630).
Cette maison possède 2 niveaux. Elle propose cinq chambres, une cuisine et deux salles de bains. Cette maison est neuve.
Une école élémentaire est implantée dans le quartier. Niveau transports en commun, il y a la gare Dieppe à moins de 10 minutes en voiture. La nationale N27 est accessible à 15 km.
Elle est proposée à l'achat pour 426 000 €.
N'hésitez pas à prendre contact avec notre agence (MASSON Sébastien : 06-23-38-14-17) pour obtenir de plus amples informations sur ce bien.

Annonce proposée par un Agent Commercial Partenaire.

Mentions légales

Terrain proposé par un partenaire foncier selon disponibilités et autorisation de publicité au prix de 58 000 €. Hors droit d'enregistrement et frais de notaire. Maison proposée, avec un contrat de construction de maison individuelle, dans le cadre de la loi du 19/12/1990, au prix de 368 000 € (Hors branchements et raccordements, papiers peints, peintures, revêtement de sol dans les chambres, qui sont chiffrés dans les travaux qui restent à charge du client. Tarif modifiable sans préavis). Étiquette énergie : A. Différents modèles disponibles pour ce terrain. Assurances et garanties du constructeur comprises (RC professionnelle, décennale, dommage ouvrage).

Contactez l'agence de Boos

02 35 80 66 66

    * Champs obligatoires

    Vos informations sont traitées par HEXAOM et transmises à un conseiller commercial qui vous contactera afin de répondre à votre demande. Les plans et images présentés sur notre site sont la propriété d’HEXAOM et ne peuvent pas être reproduits sans son accord. Pour retrouver notre politique de protection des données personnelles et exercer vos droits conformément à la « loi informatique et liberté » cliquez-ici.