Maison neuve à
Sauchay (76630) Référence : SEMA9017_11

Prix du projet : Maison avec Terrain

prix 388 000 €

  • 7 pièces
  • 5 chambres
  • Surface maison 170 m2

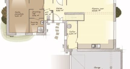
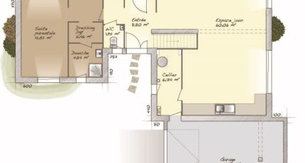
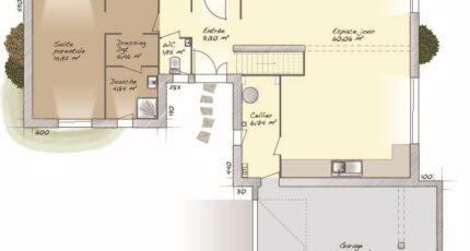
Sauchay : maison de 7 pièces (170 m²) à vendre
MAISON 7 PIÈCES NEUVE - PROCHE DE DIEPPE
En vente : à 6 km de la Manche et à quelques kilomètres de Dieppe, à Sauchay (76630), notre agence Maisons Balency Boos est heureuse de vous proposer cette maison de 7 pièces de plain-pied de 170 m².
Son intérieur est composé de cinq chambres, d'une cuisine et de trois salles de bains. La maison est neuve.
Le terrain du bien est de 800 m².
Il y a une école élémentaire dans le quartier. Côté transports, on trouve la gare Dieppe à moins de 10 minutes en voiture. La nationale N27 est accessible à 15 km.
Elle est à vendre pour la somme de 388 000 €.
Contactez Sébastien MASSON (06-23-38-14-17) pour obtenir de plus amples renseignements sur cette maison. Maisons Balency Boos vous accompagne dans toutes vos démarches et dans tous vos projets immobiliers.

Annonce proposée par un Agent Commercial Partenaire.

Mentions légales

Terrain proposé par un partenaire foncier selon disponibilités et autorisation de publicité au prix de 58 000 €. Hors droit d'enregistrement et frais de notaire. Maison proposée, avec un contrat de construction de maison individuelle, dans le cadre de la loi du 19/12/1990, au prix de 330 000 € (Hors branchements et raccordements, papiers peints, peintures, revêtement de sol dans les chambres, qui sont chiffrés dans les travaux qui restent à charge du client. Tarif modifiable sans préavis). Étiquette énergie : A. Différents modèles disponibles pour ce terrain. Assurances et garanties du constructeur comprises (RC professionnelle, décennale, dommage ouvrage).

Contactez l'agence de Boos

02 35 80 66 66

    * Champs obligatoires

    Vos informations sont traitées par HEXAOM et transmises à un conseiller commercial qui vous contactera afin de répondre à votre demande. Les plans et images présentés sur notre site sont la propriété d’HEXAOM et ne peuvent pas être reproduits sans son accord. Pour retrouver notre politique de protection des données personnelles et exercer vos droits conformément à la « loi informatique et liberté » cliquez-ici.