Maison neuve à
Seine-Port
(77240) Référence :
AA2291997_8
Prix du projet : Maison avec Terrain
prix 411 881 €
- 5 pièces
- 4 chambres
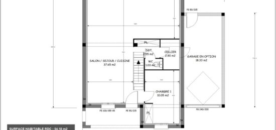
- Surface maison 101 m2
VENTE d'une maison F5 (101 m²) à Seine-Port
EMPLACEMENT PRIVILÉGIÉ - MAISON 5 PIÈCES NEUVE
En vente : à quelques kilomètres de Créteil, nous sommes ravis de vous proposer cette maison de 5 pièces de plain-pied de 101 m² et de 500 m² de terrain bénéficiant d'un emplacement privilégié dans Seine-Port (77240).
Elle offre quatre chambres, une cuisine et une salle de bains. Cette maison est neuve.
La maison se situe dans un quartier prisé. On trouve des écoles primaires à moins de 10 minutes à pied et dont l'École Élémentaire la Chesnaie. Niveau transports, il y a la station de RER Saint-Fargeau (ligne D) ainsi que la gare Saint-Fargeau-Ponthierry à quelques pas du bien. On trouve deux boulangeries, un commerce, un bureau de poste, une épicerie et deux boucheries-charcuteries à quelques minutes.
Elle est à vendre pour la somme de 411 881 €.
Contactez nous au 06-51-51-80-60 pour tout renseignement sur le bien.
Annonce proposée par un Agent Commercial Partenaire.
Mentions légales
Terrain proposé par un partenaire foncier selon disponibilités et autorisation de publicité au prix de 208 000 €. Hors droit d'enregistrement et frais de notaire. Maison proposée, avec un contrat de construction de maison individuelle, dans le cadre de la loi du 19/12/1990, au prix de 203 881 € (Hors branchements et raccordements, papiers peints, peintures, revêtement de sol dans les chambres, qui sont chiffrés dans les travaux qui restent à charge du client. Tarif modifiable sans préavis). Étiquette énergie : A. Différents modèles disponibles pour ce terrain. Assurances et garanties du constructeur comprises (RC professionnelle, décennale, dommage ouvrage).Agence Maisons Balency de Ormoy (91540)
- Téléphone :
- 09 67 70 15 81
- Adressse :
- 23 chemin de Tournenfils - 1er étage
91540 Ormoy, France
