Maison neuve à
Seine-Port
(77240) Référence :
KM2446052_2
Prix du projet : Maison avec Terrain
prix 470 000 €
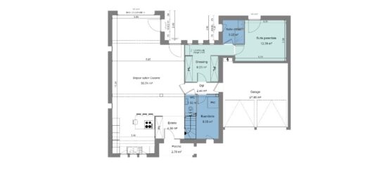
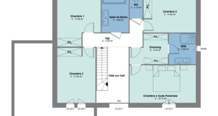
- 6 pièces
- 4 chambres
- Surface maison 136 m2
OPPORTUNITÉ FONCIÈRE À SEINE-PORT - CENTRE VILLAGE AVEC CE PROJET MAISONS BALENCY AGENCE D'ORMOY
Terrain à bâtir de 500 m² - Façade de 21 mètres
Située au coeur d'un environnement préservé et recherché, cette parcelle de 500 m² bénéficie d'un emplacement privilégié en centre-bourg. Le terrain est entièrement clos, offrant une intimité immédiate pour votre futur projet de construction.
Caractéristiques principales :
Surface du terrain : 500 m²
Largeur de façade : 21 mètres (linéaire rare permettant une grande liberté architecturale).
Surface de plancher autorisée : Jusqu'à 400 m², idéal pour une demeure familiale de standing.
Configuration : Parcelle donnant sur rue, accès direct aux réseaux.
Atouts de la commune de Seine-Port :
Seine-Port est reconnue comme l'une des communes les plus prisées de Seine-et-Marne pour sa qualité de vie exceptionnelle :
Cadre de vie : Village de caractère niché dans une boucle de la Seine, offrant un environnement calme et verdoyant.
Commodités : Écoles, commerces de proximité et vie associative dynamique accessibles à pied.
Loisirs : Proximité immédiate de la forêt de Rougeau et des bords de Seine pour les activités de plein air.
Accessibilité : Équilibre parfait entre sérénité rurale et accès aux infrastructures de transports (proximité RER D et axes routiers).
Prix de vente DU TERRAIN : 208 000 €
Expertise Maisons Balency :
Forts de notre expérience dans le secteur, nous vous accompagnons de la recherche foncière à la remise des clés. Une étude approfondie du PLU a été réalisée sur ce terrain pour garantir la faisabilité de votre projet.
Contact et informations :
Agence d'Ormoy - 23 chemin de Tournenfils 91540 ORMOY.
Possibilité de réalisation de plans 2D et insertions 3D réalistes sur rendez-vous.
Annonce proposée par un Agent Commercial Partenaire.
Mentions légales
Terrain proposé par un partenaire foncier selon disponibilités et autorisation de publicité au prix de 208 000 €. Hors droit d'enregistrement et frais de notaire. Terrain + Maison proposés au prix de 470 000 € (Hors branchements et raccordements, papiers peints, peintures, revêtement de sol dans les chambres. Tarif modifiable sans préavis). Etiquette énergie : A. Différents modèles disponibles pour ce terrain. Assurances et garanties du constructeur (RC professionnelle, décennale, dommage ouvrage, garantie de remboursement de l'acompte, livraison à prix et délai convenu) : https://www.maisons-balency.fr/informations-legales/. HEXAOM Services est enregistré auprès de l'ORIAS en tant que Courtier en financement, Niveau 1, sous le numéro 14001345.Agence Maisons Balency de Ormoy (91540)
- Téléphone :
- 09 67 70 15 81
- Adressse :
- 23 chemin de Tournenfils - 1er étage
91540 Ormoy, France
