Maison neuve à
Servaville-Salmonville (76116) Référence : RC2328267_1

Prix du projet : Maison avec Terrain

prix 244 892 €

  • 9 pièces
  • 5 chambres
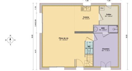
  • Surface maison 124 m2

A construire : maison F9 (124 m²) à Servaville-Salmonville.
IDÉALEMENT SITUÉE - MAISON 9 PIÈCES NEUVE
À deux pas de Rouen, nous vous proposons cette maison de 9 pièces de 124 m² et de 600 m² de terrain en vente idéalement située dans Servaville-Salmonville (76116). Elle est composée de cinq chambres, d'une cuisine et de trois salles de bains.
Cette maison possède 2 niveaux. Elle est neuve.
Cette maison se situe dans un secteur recherché. On y trouve l'École Maternelle Joseph Bara. Niveau transports, on trouve trois gares (Morgny-la-Pommeraye, Saint-Martin-du-Vivier et Longuerue-Vieux-Manoir) à moins de 10 minutes en voiture. L'autoroute A28 et la nationale N28 sont accessibles à moins de 10 km. Il y a une bibliothèque, un tennis, un commerce et une boulangerie à quelques minutes du bien.
Elle est à vendre pour la somme de 244 892 €.
Prenez contact avec notre agence (RENIER Célia : 07-62-90-87-77) pour toute information sur la maison.

Annonce proposée par un Agent Commercial Partenaire.

Mentions légales

Terrain proposé par un partenaire foncier selon disponibilités et autorisation de publicité au prix de 59 000 €. Hors droit d'enregistrement et frais de notaire. Maison proposée, avec un contrat de construction de maison individuelle, dans le cadre de la loi du 19/12/1990, au prix de 185 892 € (Hors branchements et raccordements, papiers peints, peintures, revêtement de sol dans les chambres, qui sont chiffrés dans les travaux qui restent à charge du client. Tarif modifiable sans préavis). Étiquette énergie : A. Différents modèles disponibles pour ce terrain. Assurances et garanties du constructeur comprises (RC professionnelle, décennale, dommage ouvrage).

Contactez l'agence de Boos

02 35 80 66 66

    * Champs obligatoires

    Vos informations sont traitées par HEXAOM et transmises à un conseiller commercial qui vous contactera afin de répondre à votre demande. Les plans et images présentés sur notre site sont la propriété d’HEXAOM et ne peuvent pas être reproduits sans son accord. Pour retrouver notre politique de protection des données personnelles et exercer vos droits conformément à la « loi informatique et liberté » cliquez-ici.