Maison neuve à
Servaville-Salmonville (76116) Référence : RC2328267_3

Prix du projet : Maison avec Terrain

prix 259 295 €

  • 6 pièces
  • 4 chambres
  • Surface maison 98 m2

A construire : maison de 6 pièces (98 m²) à Servaville-Salmonville
IDÉALEMENT SITUÉE - MAISON 6 PIÈCES NEUVE
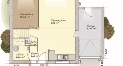
À vendre : à quelques kilomètres de Rouen, Maisons Balency Boos vous propose cette maison de 6 pièces de 98 m² idéalement située dans Servaville-Salmonville (76116). Son intérieur est composé de quatre chambres, d'une cuisine et d'une salle de bains.
Le terrain de cette maison s'étend sur 600 m².
Il s'agit d'une maison de 2 niveaux. Elle est neuve.
Cette maison se trouve dans un quartier recherché. L'École Maternelle Joseph Bara y est implantée. Niveau transports en commun, il y a trois gares (Morgny-la-Pommeraye, Saint-Martin-du-Vivier et Longuerue-Vieux-Manoir) à moins de 10 minutes en voiture. L'autoroute A28 et la nationale N28 sont accessibles à moins de 10 km. On trouve une bibliothèque, un tennis, un commerce et une boulangerie à quelques minutes à peine.
Son prix de vente est de 259 295 €.
Contactez notre agence (Célia RENIER : 07-62-90-87-77) pour plus d'informations sur la maison, sur les démarches à suivre ou sur les modalités de vente.

Annonce proposée par un Agent Commercial Partenaire.

Mentions légales

Terrain proposé par un partenaire foncier selon disponibilités et autorisation de publicité au prix de 59 000 €. Hors droit d'enregistrement et frais de notaire. Maison proposée, avec un contrat de construction de maison individuelle, dans le cadre de la loi du 19/12/1990, au prix de 200 295 € (Hors branchements et raccordements, papiers peints, peintures, revêtement de sol dans les chambres, qui sont chiffrés dans les travaux qui restent à charge du client. Tarif modifiable sans préavis). Étiquette énergie : A. Différents modèles disponibles pour ce terrain. Assurances et garanties du constructeur comprises (RC professionnelle, décennale, dommage ouvrage).

Contactez l'agence de Boos

02 35 80 66 66

    * Champs obligatoires

    Vos informations sont traitées par HEXAOM et transmises à un conseiller commercial qui vous contactera afin de répondre à votre demande. Les plans et images présentés sur notre site sont la propriété d’HEXAOM et ne peuvent pas être reproduits sans son accord. Pour retrouver notre politique de protection des données personnelles et exercer vos droits conformément à la « loi informatique et liberté » cliquez-ici.