Maison neuve à
Soisy-sous-Montmorency
(95230) Référence :
AD2302189_1
Prix du projet : Maison avec Terrain
prix 581 600 €
- 6 pièces
- 3 chambres
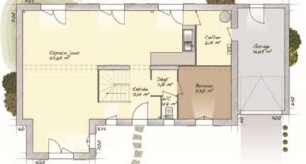
- Surface maison 133 m2
VENTE : maison de 6 pièces (133 m²) à Soisy-sous-Montmorency
MAISON 6 PIÈCES NEUVE - PROCHE DE PARIS
À proximité de la gare de Champ de Courses d'Enghien (Paris à 15 min par le Transilien H), notre agence Maisons Balency Coignières est ravie de vous présenter cette maison de 6 pièces de 133 m² et de 400 m² de terrain à Soisy-sous-Montmorency (95230).
Cette maison comporte 2 niveaux. Son intérieur se divise en trois chambres, une cuisine et deux salles de bains. Cette maison est neuve.
Il y a plusieurs établissements scolaires (maternelle, élémentaire, primaire et collège) à moins de 10 minutes à pied. Niveau transports en commun, on trouve les lignes C, D et B du RER ainsi que 2 gares à moins de 10 minutes en voiture. Il y a une bibliothèque, deux tennis, un bassin de natation, quatre boulangeries, des commerces, deux supermarchés, quatre boucheries-charcuteries et une supérette à proximité. Le marché Centre-Ville anime les environs tous les vendredis matin.
Elle est à vendre pour la somme de 581 600 €.
Contactez notre constructeur (Arnaud DUTEURTRE : 06-13-43-01-46) pour plus d'informations sur le bien.
Annonce proposée par un Agent Commercial Partenaire.
Mentions légales
Terrain proposé par un partenaire foncier selon disponibilités et autorisation de publicité au prix de 270 000 €. Hors droit d'enregistrement et frais de notaire. Maison proposée, avec un contrat de construction de maison individuelle, dans le cadre de la loi du 19/12/1990, au prix de 311 600 € (Hors branchements et raccordements, papiers peints, peintures, revêtement de sol dans les chambres, qui sont chiffrés dans les travaux qui restent à charge du client. Tarif modifiable sans préavis). Étiquette énergie : A. Différents modèles disponibles pour ce terrain. Assurances et garanties du constructeur comprises (RC professionnelle, décennale, dommage ouvrage).Agence Maisons Balency de Coignières (78310)
- Téléphone :
- 01 34 61 42 59
- Adressse :
- Domexpo Ouest
78310 Coignières, France
