Maison neuve à
Soisy-sous-Montmorency
(95230) Référence :
CT2414414_1
Prix du projet : Maison avec Terrain
prix 603 200 €
- 7 pièces
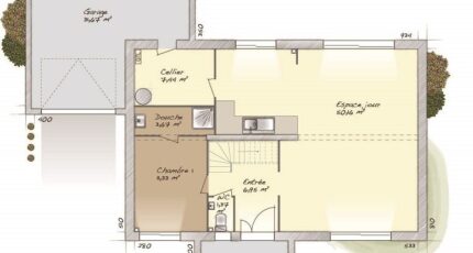
- 4 chambres
- Surface maison 160 m2
Maison T7 (160 m²) en vente à Soisy-sous-Montmorency
IDÉALEMENT SITUÉE - MAISON 7 PIÈCES NEUVE
En vente : proche de la gare de Champ de Courses d'Enghien (Paris à 15 min par le Transilien H), notre agence Maisons Balency Baillet-en-France est ravie de vous présenter cette maison de 7 pièces de 160 m² idéalement située dans Soisy-sous-Montmorency (95230).
Il s'agit d'une maison de 2 niveaux. Son intérieur inclut quatre chambres, une cuisine et deux salles de bains. Cette maison est neuve.
Le terrain de la propriété est de 430 m².
Cette maison se situe dans un quartier convoité. Plusieurs établissements scolaires (maternelle, élémentaire, primaire et collège) se trouvent à moins de 10 minutes à pied. Niveau transports, il y a trois lignes de RER (C, D et B) ainsi que 51 gares à moins de 10 minutes en voiture. Il y a une bibliothèque, deux tennis, un bassin de natation, quatre boulangeries, des commerces, deux supermarchés, une supérette et quatre boucheries-charcuteries à quelques minutes de la maison. Le marché Centre-Ville anime le quartier chaque vendredi matin.
Elle est proposée à l'achat pour 603 200 €.
N'hésitez pas à prendre contact avec Christophe TALAMONI (06-49-55-08-27) pour toute question sur la propriété, sur les démarches à suivre ou sur les modalités de vente. Maisons Balency Baillet-en-France est là pour vous accompagner dans tous vos projets immobiliers.
Annonce proposée par un Agent Commercial Partenaire.
Mentions légales
Terrain proposé par un partenaire foncier selon disponibilités et autorisation de publicité au prix de 297 000 €. Hors droit d'enregistrement et frais de notaire. Terrain + Maison proposés au prix de 603 200 € (Hors branchements et raccordements, papiers peints, peintures, revêtement de sol dans les chambres. Tarif modifiable sans préavis). Etiquette énergie : A. Différents modèles disponibles pour ce terrain. Assurances et garanties du constructeur (RC professionnelle, décennale, dommage ouvrage, garantie de remboursement de l'acompte, livraison à prix et délai convenu) : https://www.maisons-balency.fr/informations-legales/. HEXAOM Services est enregistré auprès de l'ORIAS en tant que Courtier en financement, Niveau 1, sous le numéro 14001345.Agence Maisons Balency de Baillet-en-France (95560)
- Téléphone :
- 01 34 46 05 23
- Adressse :
- 81 rue de Paris
95560 Baillet-en-France, France
