Maison neuve à
Solers
(77111) Référence :
AM2453996_3
Prix du projet : Maison avec Terrain
prix 460 000 €
- 7 pièces
- 5 chambres
- Surface maison 170 m2
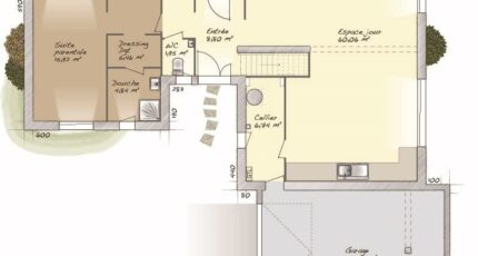
VENTE d'une maison de 7 pièces (170 m²) à Solers
MAISON 7 PIÈCES NEUVE - PROCHE DE MONTREUIL
Proche de la gare de Verneuil-l'Étang (Paris à 30 min par le Transilien P), à vendre à Solers (77111), nous sommes heureux de vous présenter cette maison de 7 pièces de plain-pied de 170 m². Conçue de plain-pied, elle comporte cinq chambres, une cuisine et trois salles de bains.
Le terrain de la propriété s'étend sur 1 400 m².
La maison est neuve.
L'École Primaire Louis Aragon est implantée dans la commune. Côté transports en commun, il y a la gare Verneuil-l'Étang à moins de 10 minutes en voiture. On trouve une bibliothèque à quelques minutes.
Son prix de vente est de 460 000 €.
Contactez notre agence (Aurelien MONTANIER : 06-24-66-88-34) pour obtenir de plus amples renseignements sur cette maison. Maisons Balency Saint-Maur-des-Fossés est là pour vous accompagner dans toutes vos démarches.
Annonce proposée par un Agent Commercial Partenaire.
Mentions légales
Terrain proposé par un partenaire foncier selon disponibilités et autorisation de publicité au prix de 139 000 €. Hors droit d'enregistrement et frais de notaire. Terrain + Maison proposés au prix de 460 000 € (Hors branchements et raccordements, papiers peints, peintures, revêtement de sol dans les chambres. Tarif modifiable sans préavis). Etiquette énergie : A. Différents modèles disponibles pour ce terrain. Assurances et garanties du constructeur (RC professionnelle, décennale, dommage ouvrage, garantie de remboursement de l'acompte, livraison à prix et délai convenu) : https://www.maisons-balency.fr/informations-legales/. HEXAOM Services est enregistré auprès de l'ORIAS en tant que Courtier en financement, Niveau 1, sous le numéro 14001345.Agence Maisons Balency de Saint-Maur-des-Fossés (94100)
- Téléphone :
- 01 87 36 85 37
- Adressse :
- 12 avenue de la république
94100 Saint-Maur-des-Fossés, France
