Maison neuve à
Soliers
(14540) Référence :
SU2383662_3
Prix du projet : Maison avec Terrain
prix 305 900 €
- 6 pièces
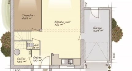
- 4 chambres
- Surface maison 98 m2
Maison F6 (98 m²) à vendre à Soliers
PROCHE DE CAEN - MAISON 6 PIÈCES NEUVE
À à 20 km des plages de Merville-Franceville et à seulement 8 km de Caen , laissez vous charmer par cette maison de 6 pièces de 98 m² à Soliers (14540). Elle comporte quatre chambres, une cuisine et une salle de bains.
Le terrain de cette maison est de 385 m².
Il s'agit d'une maison de 2 niveaux. Elle est neuve.
Il y a l'École Primaire Nicolas Copernic à moins de 10 minutes à pied. Niveau transports, on trouve les gares Frénouville-Cagny, Caen et Moult-Argences à moins de 10 minutes en voiture. L'autoroute A13 et les nationales N158 et N814 sont accessibles à moins de 4 km. Il On trouve un tennis, une bibliothèque, une boulangerie, un supermarché, deux commerces et une boucherie-charcuterie à proximité. Centre commerciale Mondeville 2, à 5 minutes en voiture.
Elle est proposée à l'achat pour 305 900 €.
N'hésitez pas à prendre contact avec Sophie UCENDO (06-35-39-35-17) pour obtenir de plus amples informations sur cette maison, sur les démarches à suivre ou sur les modalités de vente. Maisons Balency Caen vous accompagne à toutes les étapes de l'achat et dans tous vos projets immobiliers.
Mentions légales
Terrain proposé par un partenaire foncier selon disponibilités et autorisation de publicité au prix de 104 900 €. Hors droit d'enregistrement et frais de notaire. Terrain + Maison proposés au prix de 305 900 € (Hors branchements et raccordements, papiers peints, peintures, revêtement de sol dans les chambres. Tarif modifiable sans préavis). Etiquette énergie : A. Différents modèles disponibles pour ce terrain. Assurances et garanties du constructeur (RC professionnelle, décennale, dommage ouvrage, garantie de remboursement de l'acompte, livraison à prix et délai convenu) : https://www.maisons-balency.fr/informations-legales/. HEXAOM Services est enregistré auprès de l'ORIAS en tant que Courtier en financement, Niveau 1, sous le numéro 14001345.Agence Maisons Balency de Caen (14000)
- Téléphone :
- 02 31 50 38 15
- Adressse :
- 133, rue Saint Jean
14000 Caen, France
