Maison neuve à
Sotteville-lès-Rouen (76300) Référence : KB2440585_3

Prix du projet : Maison avec Terrain

prix 315 000 €

  • 6 pièces
  • 4 chambres
  • Surface maison 98 m2

Sotteville-lès-Rouen : maison T6 (98 m²) à vendre
EMPLACEMENT PRIVILÉGIÉ - MAISON 6 PIÈCES NEUVE
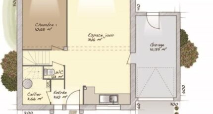
À vendre : bénéficiant d'un emplacement d'exception dans Sotteville-lès-Rouen (76300), Maisons Balency Boos vous propose cette maison de 6 pièces de 98 m² et de 460 m² de terrain. Elle se divise en quatre chambres, une cuisine et une salle de bains.
Il s'agit d'une maison de 2 niveaux. Elle est neuve.
La maison est située dans un quartier convoité. On trouve des établissements scolaires (de la maternelle au lycée) à moins de 10 minutes à pied, tout comme une structure d'accueil pour les tout-petits. Niveau transports, il y a la gare Sotteville-lès-Rouen dans les alentours. On trouve une bibliothèque, des boulangeries, des commerces, deux supermarchés, un bureau de poste et quatre épiceries à quelques minutes à peine.
Elle est à vendre pour la somme de 315 000 €.
Contactez notre agence (BAZIZ Kamel : 07-80-36-63-82) pour toute question sur la maison, sur les modalités de vente ou sur les démarches à suivre.

Annonce proposée par un Agent Commercial Partenaire.

Mentions légales

Terrain proposé par un partenaire foncier selon disponibilités et autorisation de publicité au prix de 139 400 €. Hors droit d'enregistrement et frais de notaire. Terrain + Maison proposés au prix de 315 000 € (Hors branchements et raccordements, papiers peints, peintures, revêtement de sol dans les chambres. Tarif modifiable sans préavis). Etiquette énergie : A. Différents modèles disponibles pour ce terrain. Assurances et garanties du constructeur (RC professionnelle, décennale, dommage ouvrage, garantie de remboursement de l'acompte, livraison à prix et délai convenu) : https://www.maisons-balency.fr/informations-legales/. HEXAOM Services est enregistré auprès de l'ORIAS en tant que Courtier en financement, Niveau 1, sous le numéro 14001345.

Contactez l'agence de Boos

02 35 80 66 66

    * Champs obligatoires

    Vos informations sont traitées par HEXAOM et transmises à un conseiller commercial qui vous contactera afin de répondre à votre demande. Les plans et images présentés sur notre site sont la propriété d’HEXAOM et ne peuvent pas être reproduits sans son accord. Pour retrouver notre politique de protection des données personnelles et exercer vos droits conformément à la « loi informatique et liberté » cliquez-ici.