Maison neuve à
Sucy-en-Brie
(94370) Référence :
CM2334205_2
Prix du projet : Maison avec Terrain
prix 519 000 €
- 6 pièces
- 4 chambres
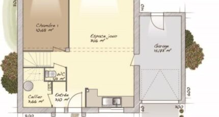
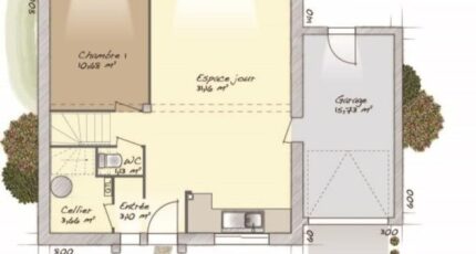
- Surface maison 98 m2
Maison de 6 pièces (98 m²) en vente à Sucy-en-Brie
MAISON 6 PIÈCES NEUVE
À vendre : au pied du RER A (station Sucy-Bonneuil, 20 min de Paris), notre agence Maisons Balency Saint-Maur-des-Fossés est heureuse de vous présenter cette maison de 6 pièces de 98 m² à Sucy-en-Brie (94370). Son intérieur compte quatre chambres, une cuisine et une salle de bains.
Le terrain de la propriété est de 540 m².
Cette maison comporte 2 niveaux. Elle est neuve.
Il y a des établissements scolaires (de la maternelle au lycée) à moins de 10 minutes à pied, tout comme trois structures d'accueil pour les enfants en bas âge. Niveau transports, on trouve les lignes A, D, E et C du RER ainsi que 22 gares à moins de 10 minutes en voiture. Il y a une bibliothèque, un bassin de natation, des commerces, des boulangeries, trois supermarchés, une épicerie et un bureau de poste dans les environs. Enfin, 2 marchés animent les environs.
Elle est à vendre pour la somme de 519 000 €.
Contactez Christophe MONTANIER (06-10-23-51-22) pour tout renseignement sur la maison, sur les démarches à suivre ou sur les modalités de vente.
Annonce proposée par un Agent Commercial Partenaire.
Mentions légales
Terrain proposé par un partenaire foncier selon disponibilités et autorisation de publicité au prix de 280 000 €. Hors droit d'enregistrement et frais de notaire. Terrain + Maison proposés au prix de 239 000 € (Hors branchements et raccordements, papiers peints, peintures, revêtement de sol dans les chambres. Tarif modifiable sans préavis). Etiquette énergie : A. Différents modèles disponibles pour ce terrain. Assurances et garanties du constructeur (RC professionnelle, décennale, dommage ouvrage, garantie de remboursement de l'acompte, livraison à prix et délai convenu) : https://www.maisons-balency.fr/informations-legales/. HEXAOM Services est enregistré auprès de l'ORIAS en tant que Courtier en financement, Niveau 1, sous le numéro 14001345.Agence Maisons Balency de Saint-Maur-des-Fossés (94100)
- Téléphone :
- 01 87 36 85 37
- Adressse :
- 12 avenue de la république
94100 Saint-Maur-des-Fossés, France
