Maison neuve à
Noiseau
(94880) Référence :
AM2253752_2
Prix du projet : Maison avec Terrain
prix 403 000 €
- 6 pièces
- 4 chambres
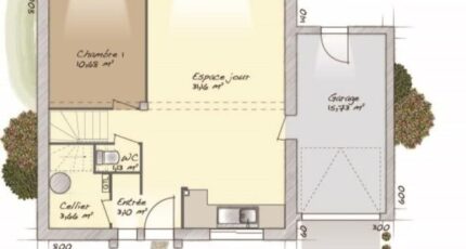
- Surface maison 98 m2
Maison F6 (98 m²) à vendre à Sucy-en-Brie
MAISON 6 PIÈCES NEUVE
En vente : à côté de la station Sucy-Bonneuil (Paris à 20 min avec le RER A), nous sommes heureux de vous présenter cette maison de 6 pièces de 98 m² à Sucy-en-Brie (94880). Son intérieur propose quatre chambres, une cuisine et une salle de bains.
Le terrain de la maison s'étend sur 522 m².
Il s'agit d'une maison de 2 niveaux. Elle est neuve.
Il y a l'École Élémentaire Jean Jaurès et l'École Maternelle Albert Camus à moins de 10 minutes à pied. Niveau transports, on trouve les lignes A, E et D du RER ainsi que 14 gares à moins de 10 minutes en voiture. Il y a une bibliothèque, un tennis, un supermarché et quatre commerces à quelques minutes du bien.
Elle est à vendre pour la somme de 403 000 €.
Prenez contact avec Aurelien MONTANIER (tél : 06-24-66-88-34) pour obtenir de plus amples informations sur cette maison.
Annonce proposée par un Agent Commercial Partenaire.
Mentions légales
Terrain proposé par un partenaire foncier selon disponibilités et autorisation de publicité au prix de 199 000 €. Hors droit d'enregistrement et frais de notaire. Maison proposée, avec un contrat de construction de maison individuelle, dans le cadre de la loi du 19/12/1990, au prix de 204 000 € (Hors branchements et raccordements, papiers peints, peintures, revêtement de sol dans les chambres, qui sont chiffrés dans les travaux qui restent à charge du client. Tarif modifiable sans préavis). Étiquette énergie : A. Différents modèles disponibles pour ce terrain. Assurances et garanties du constructeur comprises (RC professionnelle, décennale, dommage ouvrage).Agence Maisons Balency de Saint-Maur-des-Fossés (94100)
- Téléphone :
- 01 87 36 85 37
- Adressse :
- 12 avenue de la république
94100 Saint-Maur-des-Fossés, France
