Maison neuve à
Surville (27400) Référence : EL2308366_1

Prix du projet : Maison avec Terrain

prix 160 000 €

  • 4 pièces
  • 2 chambres
  • Surface maison 50 m2

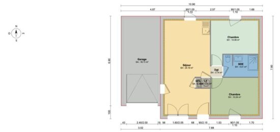
Surville : maison F4 (50 m²) en vente
IDÉALEMENT SITUÉE - MAISON 4 PIÈCES NEUVE
En vente : située à 27 km de Rouen, nous vous proposons cette maison de 4 pièces de plain-pied de 50 m² et de 840 m² de terrain, idéalement située dans Surville (27400). Elle comporte deux chambres, une cuisine et une salle de bains.
La maison est neuve.
Cette maison est située dans un quartier prisé. On trouve l'École Primaire Aulnette à moins de 10 minutes à pied. Niveau transports, il y a la gare Saint-Pierre-du-Vauvray à moins de 10 minutes en voiture. Les autoroutes A154 et A13 et la nationale N154 sont accessibles à moins de 8 km. On trouve une boulangerie, un commerce et une épicerie à proximité.
Elle est à vendre pour la somme de 160 000 €.
N'hésitez pas à prendre contact avec notre agence (LEOVANT Aurélien : 02-35-80-66-66) pour plus de renseignements sur le bien ou sur les modalités de vente. Maisons Balency Boos est là pour vous accompagner dans toutes vos démarches.

Annonce proposée par un Agent Commercial Partenaire.

Mentions légales

Terrain proposé par un partenaire foncier selon disponibilités et autorisation de publicité au prix de 55 000 €. Hors droit d'enregistrement et frais de notaire. Terrain + Maison proposés au prix de 105 000 € (Hors branchements et raccordements, papiers peints, peintures, revêtement de sol dans les chambres. Tarif modifiable sans préavis). Etiquette énergie : A. Différents modèles disponibles pour ce terrain. Assurances et garanties du constructeur (RC professionnelle, décennale, dommage ouvrage, garantie de remboursement de l'acompte, livraison à prix et délai convenu) : https://www.maisons-balency.fr/informations-legales/. HEXAOM Services est enregistré auprès de l'ORIAS en tant que Courtier en financement, Niveau 1, sous le numéro 14001345.

Contactez l'agence de Boos

02 35 80 66 66

    * Champs obligatoires

    Vos informations sont traitées par HEXAOM et transmises à un conseiller commercial qui vous contactera afin de répondre à votre demande. Les plans et images présentés sur notre site sont la propriété d’HEXAOM et ne peuvent pas être reproduits sans son accord. Pour retrouver notre politique de protection des données personnelles et exercer vos droits conformément à la « loi informatique et liberté » cliquez-ici.