Maison neuve à
Surville (27400) Référence : EL2308601_1

Prix du projet : Maison avec Terrain

prix 160 000 €

  • 4 pièces
  • 2 chambres
  • Surface maison 50 m2

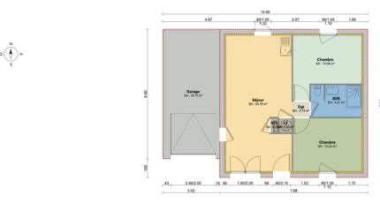
VENTE : maison F4 (50 m²) à Surville
IDÉALEMENT SITUÉE - MAISON 4 PIÈCES NEUVE
En vente : localisée à deux pas de Rouen, Maisons Balency Boos vous présente, idéalement située dans Surville (27400), cette maison de 4 pièces de plain-pied de 50 m². Son intérieur offre deux chambres, une cuisine et une salle de bains.
Le terrain de cette maison s'étend sur 800 m².
La maison est neuve.
La maison est située dans un quartier attractif. On trouve l'École Primaire Aulnette à moins de 10 minutes à pied. Niveau transports en commun, il y a la gare Saint-Pierre-du-Vauvray à moins de 10 minutes en voiture. Les autoroutes A154 et A13 et la nationale N154 sont accessibles à moins de 8 km. On trouve une boulangerie, un commerce et une épicerie dans les environs.
Elle est à vendre pour la somme de 160 000 €.
Contactez Aurélien LEOVANT (tél : 02-35-80-66-66) pour tout renseignement sur la maison, sur les démarches à suivre ou sur les modalités de vente. Maisons Balency Boos est là pour vous accompagner dans tous vos projets immobiliers.

Annonce proposée par un Agent Commercial Partenaire.

Mentions légales

Terrain proposé par un partenaire foncier selon disponibilités et autorisation de publicité au prix de 55 000 €. Hors droit d'enregistrement et frais de notaire. Maison proposée, avec un contrat de construction de maison individuelle, dans le cadre de la loi du 19/12/1990, au prix de 105 000 € (Hors branchements et raccordements, papiers peints, peintures, revêtement de sol dans les chambres, qui sont chiffrés dans les travaux qui restent à charge du client. Tarif modifiable sans préavis). Étiquette énergie : A. Différents modèles disponibles pour ce terrain. Assurances et garanties du constructeur comprises (RC professionnelle, décennale, dommage ouvrage).

Contactez l'agence de Boos

02 35 80 66 66

    * Champs obligatoires

    Vos informations sont traitées par HEXAOM et transmises à un conseiller commercial qui vous contactera afin de répondre à votre demande. Les plans et images présentés sur notre site sont la propriété d’HEXAOM et ne peuvent pas être reproduits sans son accord. Pour retrouver notre politique de protection des données personnelles et exercer vos droits conformément à la « loi informatique et liberté » cliquez-ici.