Maison neuve à
Surville (27400) Référence : FG2345572_2

Prix du projet : Maison avec Terrain

prix 271 500 €

  • 6 pièces
  • 4 chambres
  • Surface maison 117 m2

VENTE : maison T6 (117 m²) à Surville
EMPLACEMENT PRIVILÉGIÉ -
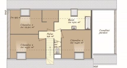
À 27 km de Rouen, venez découvrir à vendre, bénéficiant d'un emplacement privilégié dans Surville (27400), cette maison de 6 pièces de 117 m² et de 800 m² de terrain. Elle est composée de quatre chambres dont une suite parentale, d'une cuisine ouverte sur l'espace de vie, de deux salles de bains, d'un cellier donnant sur le garage.
Cette maison est neuve.
La propriété se trouve dans un quartier recherché. L'École Primaire Aulnette est implantée à moins de 10 minutes à pied. Niveau transports en commun, on trouve la gare Saint-Pierre-du-Vauvray à moins de 10 minutes en voiture. Les autoroutes A154 et A13 et la nationale N154 sont accessibles à moins de 8 km. Il y a une boulangerie, un commerce et une épicerie à proximité.

Son prix de vente est de 271 500 €.
Contactez Fanny GATINAULT (06-34-03-24-37) pour plus d'informations sur la maison, sur les démarches à suivre ou sur les modalités de vente.

Annonce proposée par un Agent Commercial Partenaire.

Mentions légales

Terrain proposé par un partenaire foncier selon disponibilités et autorisation de publicité au prix de 55 000 €. Hors droit d'enregistrement et frais de notaire. Terrain + Maison proposés au prix de 271 500 € (Hors branchements et raccordements, papiers peints, peintures, revêtement de sol dans les chambres. Tarif modifiable sans préavis). Etiquette énergie : A. Différents modèles disponibles pour ce terrain. Assurances et garanties du constructeur (RC professionnelle, décennale, dommage ouvrage, garantie de remboursement de l'acompte, livraison à prix et délai convenu) : https://www.maisons-balency.fr/informations-legales/. HEXAOM Services est enregistré auprès de l'ORIAS en tant que Courtier en financement, Niveau 1, sous le numéro 14001345.

Contactez l'agence de Louviers

02 32 51 43 53

    * Champs obligatoires

    Vos informations sont traitées par HEXAOM et transmises à un conseiller commercial qui vous contactera afin de répondre à votre demande. Les plans et images présentés sur notre site sont la propriété d’HEXAOM et ne peuvent pas être reproduits sans son accord. Pour retrouver notre politique de protection des données personnelles et exercer vos droits conformément à la « loi informatique et liberté » cliquez-ici.