Maison neuve à
Taverny
(95150) Référence :
CT2415254_4
Prix du projet : Maison avec Terrain
prix 698 500 €
- 8 pièces
- 5 chambres
- Surface maison 200 m2
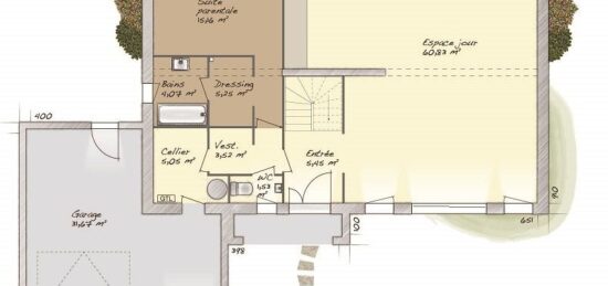
VENTE : maison F8 (200 m²) à Taverny
MAISON 8 PIÈCES NEUVE
À proximité de la gare (Paris à 30 min par le Transilien H), Maisons Balency Baillet-en-France vous propose cette maison de 8 pièces de 200 m² et de 663 m² de terrain à Taverny (95150). Elle comporte cinq chambres, une cuisine et deux salles de bains.
Il s'agit d'une maison de 2 niveaux. Elle est neuve.
Il y a des écoles maternelles et élémentaires à moins de 10 minutes à pied, tout comme une crèche. Niveau transports en commun, on trouve deux gares (Taverny et Vaucelles) dans les environs. Il y a une bibliothèque, des commerces, des boulangeries, un supermarché, deux supérettes et quatre épiceries à quelques minutes du bien. Enfin, 2 marchés animent le quartier.
Son prix de vente est de 698 500 €.
Contactez Christophe TALAMONI (tél : 06-49-55-08-27) pour tout renseignement sur la propriété ou sur les démarches à suivre. Maisons Balency Baillet-en-France vous accompagne à toutes les étapes de l'achat et dans tous vos projets immobiliers.
Annonce proposée par un Agent Commercial Partenaire.
Mentions légales
Terrain proposé par un partenaire foncier selon disponibilités et autorisation de publicité au prix de 295 000 €. Hors droit d'enregistrement et frais de notaire. Terrain + Maison proposés au prix de 698 500 € (Hors branchements et raccordements, papiers peints, peintures, revêtement de sol dans les chambres. Tarif modifiable sans préavis). Etiquette énergie : A. Différents modèles disponibles pour ce terrain. Assurances et garanties du constructeur (RC professionnelle, décennale, dommage ouvrage, garantie de remboursement de l'acompte, livraison à prix et délai convenu) : https://www.maisons-balency.fr/informations-legales/. HEXAOM Services est enregistré auprès de l'ORIAS en tant que Courtier en financement, Niveau 1, sous le numéro 14001345.Agence Maisons Balency de Baillet-en-France (95560)
- Téléphone :
- 01 34 46 05 23
- Adressse :
- 81 rue de Paris
95560 Baillet-en-France, France
