Maison neuve à
Louviers (27400) Référence : KXA2316825_3

Prix du projet : Maison avec Terrain

prix 398 000 €

  • 5 pièces
  • 3 chambres
  • Surface maison 120 m2

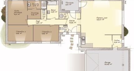
VENTE d'une maison de 5 pièces (120 m²) à Terres De Bord
PROCHE DE ROUEN - MAISON 5 PIÈCES NEUVE
À deux pas de Rouen, Maisons Balency Boos vous présente en vente à Terres De Bord (27400), cette maison de 5 pièces de plain-pied de 120 m² et de 6 730 m² de terrain. Son intérieur inclut trois chambres, une cuisine et deux salles de bains.
La maison est neuve.
Il y a l'École Primaire Montaure à moins de 10 minutes à pied et une structure d'accueil pour les enfants en bas âge. Côté transports en commun, on trouve la gare Elbeuf-Saint-Aubin à moins de 10 minutes en voiture. Les autoroutes A13 et A154 et la nationale N154 sont accessibles à moins de 9 km. Il y a un tennis et une boulangerie dans les environs.
Son prix de vente est de 398 000 €.
Contactez Kévin XAVIER ALVES (06-58-91-13-87) pour tout renseignement sur la maison, sur les démarches à suivre ou sur les modalités de vente. Maisons Balency Boos est là pour vous accompagner à toutes les étapes de l'achat.

Annonce proposée par un Agent Commercial Partenaire.

Mentions légales

Terrain proposé par un partenaire foncier selon disponibilités et autorisation de publicité au prix de 153 000 €. Hors droit d'enregistrement et frais de notaire. Terrain + Maison proposés au prix de 398 000 € (Hors branchements et raccordements, papiers peints, peintures, revêtement de sol dans les chambres. Tarif modifiable sans préavis). Etiquette énergie : A. Différents modèles disponibles pour ce terrain. Assurances et garanties du constructeur (RC professionnelle, décennale, dommage ouvrage, garantie de remboursement de l'acompte, livraison à prix et délai convenu) : https://www.maisons-balency.fr/informations-legales/. HEXAOM Services est enregistré auprès de l'ORIAS en tant que Courtier en financement, Niveau 1, sous le numéro 14001345.

Contactez l'agence de Boos

02 35 80 66 66

    * Champs obligatoires

    Vos informations sont traitées par HEXAOM et transmises à un conseiller commercial qui vous contactera afin de répondre à votre demande. Les plans et images présentés sur notre site sont la propriété d’HEXAOM et ne peuvent pas être reproduits sans son accord. Pour retrouver notre politique de protection des données personnelles et exercer vos droits conformément à la « loi informatique et liberté » cliquez-ici.