Maison neuve à
Louviers (27400) Référence : KXA2332299_1

Prix du projet : Maison avec Terrain

prix 369 900 €

  • 7 pièces
  • 4 chambres
  • Surface maison 160 m2

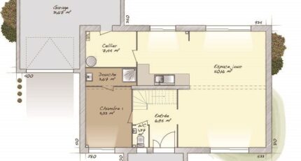
VENTE d'une maison F7 (160 m²) à Terres De Bord
PROCHE DE ROUEN - MAISON 7 PIÈCES NEUVE
En vente : localisée à deux pas de Rouen, à Terres De Bord (27400), Maisons Balency Boos vous présente cette maison de 7 pièces de 160 m².
Cette maison comporte 2 niveaux. Son intérieur dispose de quatre chambres, d'une cuisine et de deux salles de bains. La maison est neuve.
Le terrain du bien est de 787 m².
L'École Primaire Montaure est implantée à moins de 10 minutes à pied, tout comme une crèche. Niveau transports, il y a la gare Elbeuf-Saint-Aubin à moins de 10 minutes en voiture. Les autoroutes A13 et A154 et la nationale N154 sont accessibles à moins de 9 km. On trouve un tennis et une boulangerie à quelques minutes de la maison.
Son prix de vente est de 369 900 €.
Prenez contact avec notre agence (XAVIER ALVES Kévin : 06-58-91-13-87) pour tout renseignement sur la maison. Faites de vos projets immobiliers une réalité avec Maisons Balency Boos.

Annonce proposée par un Agent Commercial Partenaire.

Mentions légales

Terrain proposé par un partenaire foncier selon disponibilités et autorisation de publicité au prix de 70 000 €. Hors droit d'enregistrement et frais de notaire. Terrain + Maison proposés au prix de 299 900 € (Hors branchements et raccordements, papiers peints, peintures, revêtement de sol dans les chambres. Tarif modifiable sans préavis). Etiquette énergie : A. Différents modèles disponibles pour ce terrain. Assurances et garanties du constructeur (RC professionnelle, décennale, dommage ouvrage, garantie de remboursement de l'acompte, livraison à prix et délai convenu) : https://www.maisons-balency.fr/informations-legales/. HEXAOM Services est enregistré auprès de l'ORIAS en tant que Courtier en financement, Niveau 1, sous le numéro 14001345.

Contactez l'agence de Boos

02 35 80 66 66

    * Champs obligatoires

    Vos informations sont traitées par HEXAOM et transmises à un conseiller commercial qui vous contactera afin de répondre à votre demande. Les plans et images présentés sur notre site sont la propriété d’HEXAOM et ne peuvent pas être reproduits sans son accord. Pour retrouver notre politique de protection des données personnelles et exercer vos droits conformément à la « loi informatique et liberté » cliquez-ici.