Maison neuve à
Louviers (27400) Référence : KXA2335695_1

Prix du projet : Maison avec Terrain

prix 449 000 €

  • 8 pièces
  • 5 chambres
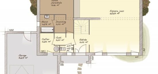
  • Surface maison 145 m2

VENTE d'une maison de 8 pièces (145 m²) à Terres De Bord
MAISON 8 PIÈCES NEUVE - PROCHE DE ROUEN
En vente : à deux pas de Rouen, à Terres De Bord (27400), votre agence Maisons Balency Boos est heureuse de vous proposer cette maison de 8 pièces de 145 m².
C'est une maison de 2 niveaux. Elle dispose de cinq chambres, d'une cuisine et de trois salles de bains. Cette maison est neuve.
Le terrain du bien est de 6 730 m².
L'École Primaire Montaure se trouve à moins de 10 minutes à pied, tout comme une crèche. Niveau transports en commun, il y a la gare Elbeuf-Saint-Aubin à moins de 10 minutes en voiture. Les autoroutes A13 et A154 et la nationale N154 sont accessibles à moins de 9 km. On trouve un tennis et une boulangerie dans les environs.
Elle est proposée à l'achat pour 449 000 €.
Contactez notre constructeur (Kévin XAVIER ALVES : 06-58-91-13-87) pour toute information sur la maison.

Annonce proposée par un Agent Commercial Partenaire.

Mentions légales

Terrain proposé par un partenaire foncier selon disponibilités et autorisation de publicité au prix de 153 000 €. Hors droit d'enregistrement et frais de notaire. Terrain + Maison proposés au prix de 296 000 € (Hors branchements et raccordements, papiers peints, peintures, revêtement de sol dans les chambres. Tarif modifiable sans préavis). Etiquette énergie : A. Différents modèles disponibles pour ce terrain. Assurances et garanties du constructeur (RC professionnelle, décennale, dommage ouvrage, garantie de remboursement de l'acompte, livraison à prix et délai convenu) : https://www.maisons-balency.fr/informations-legales/. HEXAOM Services est enregistré auprès de l'ORIAS en tant que Courtier en financement, Niveau 1, sous le numéro 14001345.

Contactez l'agence de Boos

02 35 80 66 66

    * Champs obligatoires

    Vos informations sont traitées par HEXAOM et transmises à un conseiller commercial qui vous contactera afin de répondre à votre demande. Les plans et images présentés sur notre site sont la propriété d’HEXAOM et ne peuvent pas être reproduits sans son accord. Pour retrouver notre politique de protection des données personnelles et exercer vos droits conformément à la « loi informatique et liberté » cliquez-ici.