Maison neuve à
Louviers (27400) Référence : KXA2335695_3

Prix du projet : Maison avec Terrain

prix 353 000 €

  • 6 pièces
  • 4 chambres
  • Surface maison 117 m2

VENTE : maison de 6 pièces (117 m²) à Terres De Bord
MAISON 6 PIÈCES NEUVE - PROCHE DE ROUEN
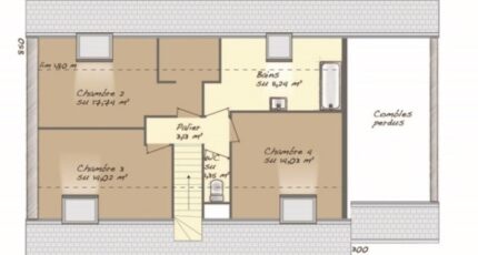
À deux pas de Rouen, à vendre à Terres De Bord (27400), nous vous proposons cette maison de 6 pièces de plain-pied de 117 m² et de 6 730 m² de terrain.
Son intérieur comporte quatre chambres, une cuisine et deux salles de bains. La maison est neuve.
Il y a l'École Primaire Montaure à moins de 10 minutes à pied et une structure d'accueil pour la petite enfance. Niveau transports en commun, on trouve la gare Elbeuf-Saint-Aubin à moins de 10 minutes en voiture. Les autoroutes A13 et A154 et la nationale N154 sont accessibles à moins de 9 km. Il y a un tennis et une boulangerie à quelques minutes à peine.
Elle est à vendre pour la somme de 353 000 €.
Contactez Kévin XAVIER ALVES (06-58-91-13-87) pour plus d'informations sur cette maison ou sur les modalités de vente.

Annonce proposée par un Agent Commercial Partenaire.

Mentions légales

Terrain proposé par un partenaire foncier selon disponibilités et autorisation de publicité au prix de 153 000 €. Hors droit d'enregistrement et frais de notaire. Terrain + Maison proposés au prix de 200 000 € (Hors branchements et raccordements, papiers peints, peintures, revêtement de sol dans les chambres. Tarif modifiable sans préavis). Etiquette énergie : A. Différents modèles disponibles pour ce terrain. Assurances et garanties du constructeur (RC professionnelle, décennale, dommage ouvrage, garantie de remboursement de l'acompte, livraison à prix et délai convenu) : https://www.maisons-balency.fr/informations-legales/. HEXAOM Services est enregistré auprès de l'ORIAS en tant que Courtier en financement, Niveau 1, sous le numéro 14001345.

Contactez l'agence de Boos

02 35 80 66 66

    * Champs obligatoires

    Vos informations sont traitées par HEXAOM et transmises à un conseiller commercial qui vous contactera afin de répondre à votre demande. Les plans et images présentés sur notre site sont la propriété d’HEXAOM et ne peuvent pas être reproduits sans son accord. Pour retrouver notre politique de protection des données personnelles et exercer vos droits conformément à la « loi informatique et liberté » cliquez-ici.