Maison neuve à
Thoiry
(78770) Référence :
TD2332204_2
Prix du projet : Maison avec Terrain
prix 511 500 €
- 6 pièces
- 4 chambres
- Surface maison 90 m2
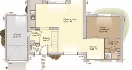
Thoiry : maison F6 (90 m²) à vendre
IDÉALEMENT SITUÉE - MAISON 6 PIÈCES NEUVE
À deux pas de la gare de Beynes (Paris à 50 min avec le Transilien N), Maisons Balency Coignières vous présente cette maison de 6 pièces de 90 m² et de 1 115 m² de terrain en vente idéalement située dans Thoiry (78770).
Cette maison possède 2 niveaux. Elle comporte quatre chambres, une cuisine et deux salles de bains. La maison est neuve.
La maison se situe dans un quartier attractif. On y trouve des écoles primaires. Il y a un tennis, une bibliothèque, un commerce, une boulangerie, un supermarché, une boucherie-charcuterie et un bureau de poste dans les environs.
Son prix de vente est de 511 500 €.
Contactez notre agence (Thibault DUTEURTRE : 06-23-41-73-81) pour toute information sur la maison ou sur les démarches à suivre. Maisons Balency Coignières est là pour vous accompagner dans tous vos projets immobiliers.
Annonce proposée par un Agent Commercial Partenaire.
Mentions légales
Terrain proposé par un partenaire foncier selon disponibilités et autorisation de publicité au prix de 200 000 €. Hors droit d'enregistrement et frais de notaire. Maison proposée, avec un contrat de construction de maison individuelle, dans le cadre de la loi du 19/12/1990, au prix de 311 500 € (Hors branchements et raccordements, papiers peints, peintures, revêtement de sol dans les chambres, qui sont chiffrés dans les travaux qui restent à charge du client. Tarif modifiable sans préavis). Étiquette énergie : A. Différents modèles disponibles pour ce terrain. Assurances et garanties du constructeur comprises (RC professionnelle, décennale, dommage ouvrage).Agence Maisons Balency de Coignières (78310)
- Téléphone :
- 01 34 61 42 59
- Adressse :
- Domexpo Ouest
78310 Coignières, France
