Maison neuve à
Thoiry
(78770) Référence :
TD2332243_1
Prix du projet : Maison avec Terrain
prix 592 375 €
- 7 pièces
- 5 chambres
- Surface maison 170 m2
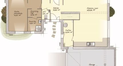
Maison F7 (170 m²) à vendre à Thoiry
IDÉALEMENT SITUÉE - MAISON 7 PIÈCES NEUVE
À côté du Transilien N (gare de Beynes, 50 min de Paris), nous vous présentons cette maison de 7 pièces de 170 m² avec vue sur jardin à vendre idéalement située dans Thoiry (78770).
Cette maison de plain-pied est de plain-pied. Son intérieur propose cinq chambres, une cuisine et trois salles de bains. Cette maison est neuve.
Le terrain de la propriété s'étend sur 1 205 m².
La maison est située dans un secteur attractif. Des écoles maternelles et élémentaires y sont implantées. Il y a un tennis, une bibliothèque, un commerce, une boulangerie, un supermarché, une boucherie-charcuterie et un bureau de poste à quelques minutes du bien.
Elle est proposée à l'achat pour 592 375 €.
Prenez contact avec notre agence (Thibault DUTEURTRE : 06-23-41-73-81) pour obtenir de plus amples informations sur la propriété, sur les modalités de vente ou sur les démarches à suivre.
Annonce proposée par un Agent Commercial Partenaire.
Mentions légales
Terrain proposé par un partenaire foncier selon disponibilités et autorisation de publicité au prix de 210 000 €. Hors droit d'enregistrement et frais de notaire. Maison proposée, avec un contrat de construction de maison individuelle, dans le cadre de la loi du 19/12/1990, au prix de 382 375 € (Hors branchements et raccordements, papiers peints, peintures, revêtement de sol dans les chambres, qui sont chiffrés dans les travaux qui restent à charge du client. Tarif modifiable sans préavis). Étiquette énergie : A. Différents modèles disponibles pour ce terrain. Assurances et garanties du constructeur comprises (RC professionnelle, décennale, dommage ouvrage).Agence Maisons Balency de Coignières (78310)
- Téléphone :
- 01 34 61 42 59
- Adressse :
- Domexpo Ouest
78310 Coignières, France
